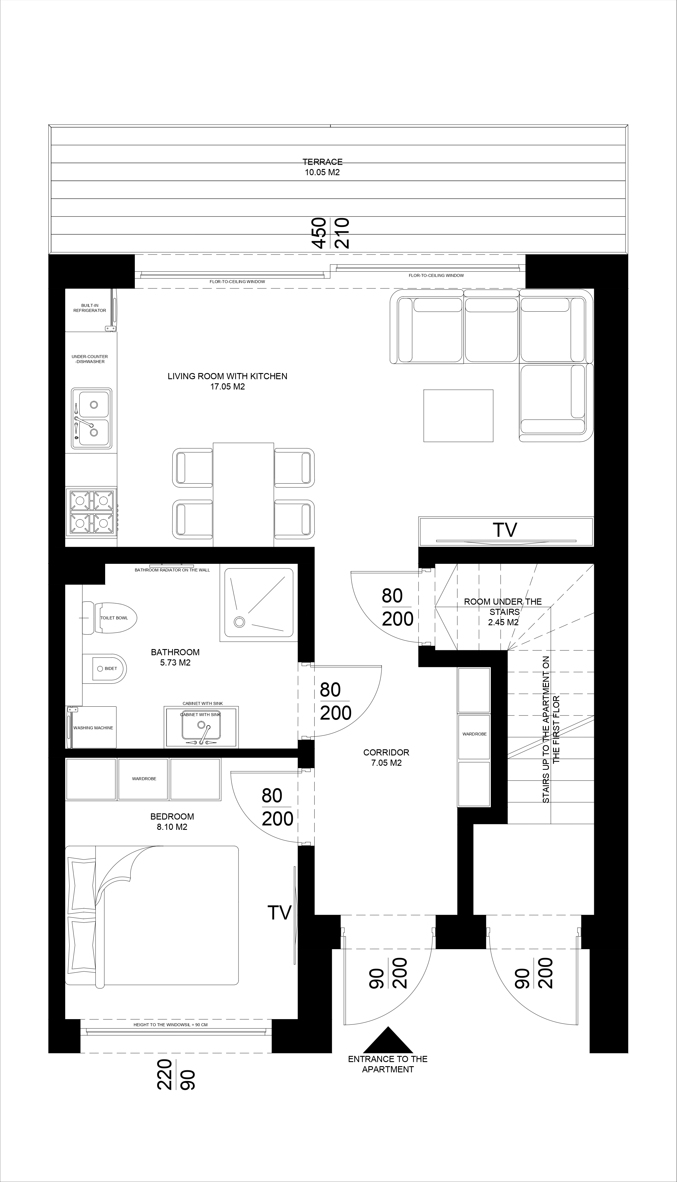
convert this floor plan into a realistic isometric 3d view of a full house show the space from an elevated angle with furniture walls and details visible don t change the wall layout add any windows doors or railings angled view in a loft style remove subtitles don t look centrally from above only at a slight angle use the same furniture as shows on the plan do not change the orientation of the floorplan