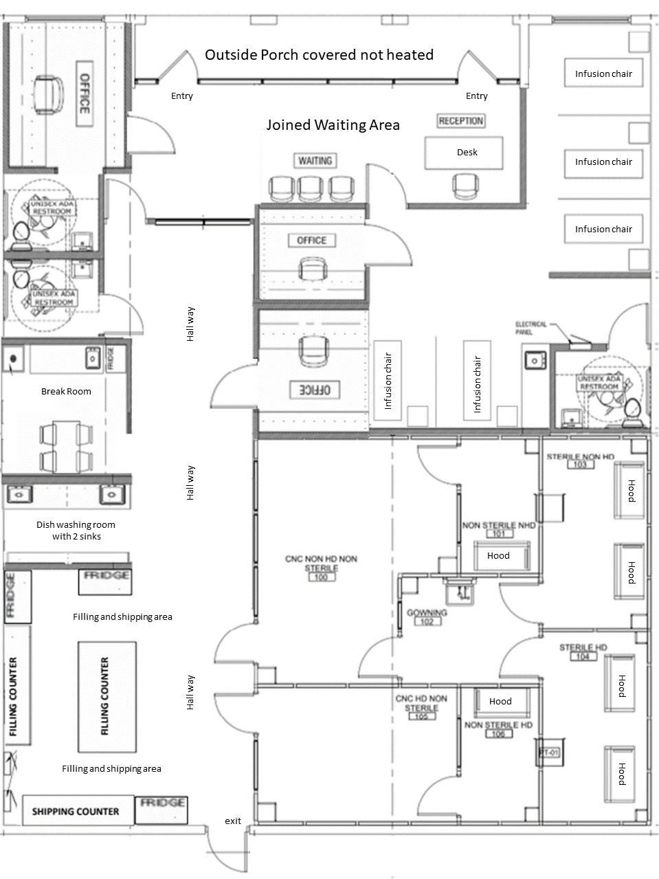
convert this floor plan into a realistic isometric 3d view of a full house show the space from an elevated angle with furniture walls and details visible north up 3d isometric render entry 2 doors top wall north exit 1 door bottom rear south enlarged shared waiting reception left pharmacy checkout desk customer bath office employee bath break room dishwash w dual sinks rear filling shipping lower right 7 cleanroom suites w hoods top spa infusion lounge recliners 2 offices bath industrial ducts concrete glass partitions zoned styles sterile white warm wood blue path start top entry doors dolly thru waiting checkout left pharmacy support all rooms passed pan to 7 cleanrooms arc to infusion lounge drift to bottom exit slow motion high ceilings pro lighting transitions use the same furniture as shows on the plan do not change the orientation of the floorplan