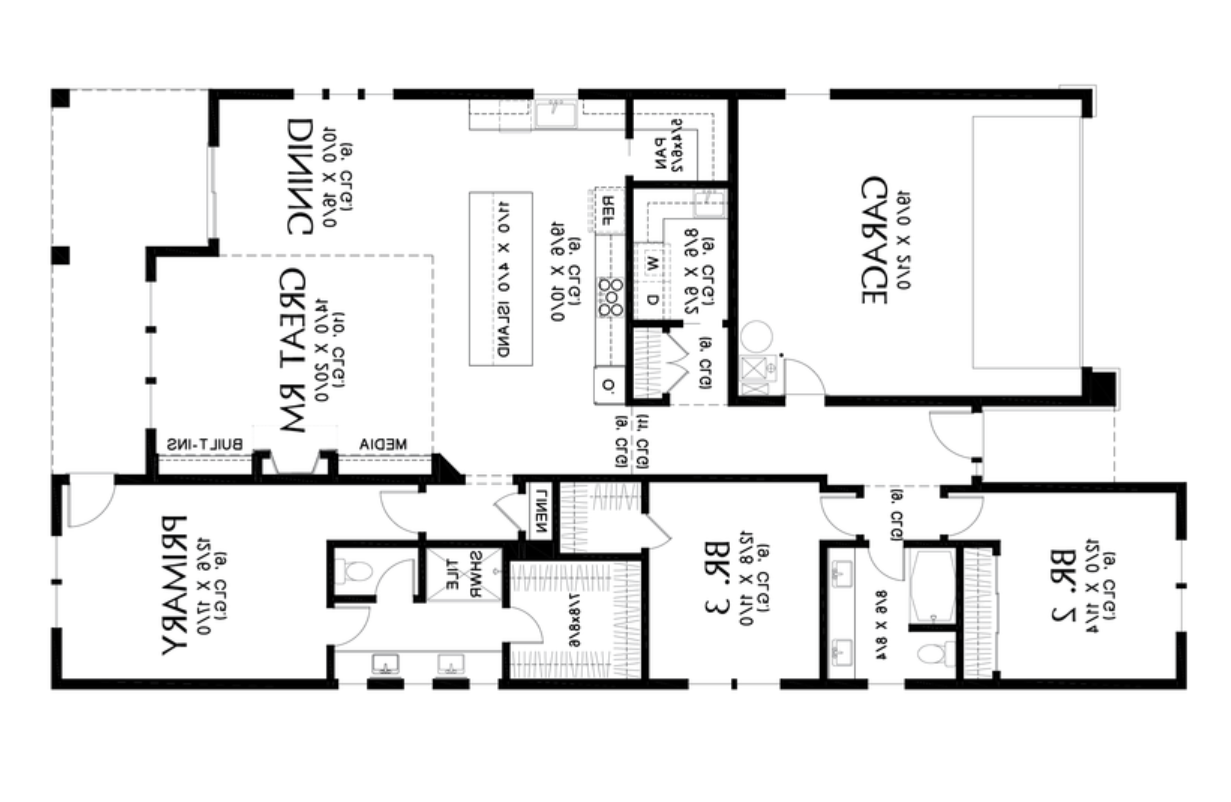
create a realistic interior view based on this floor plan modern open concept living room and kitchen wood floors large kitchen island white cabinets modern furniture warm lighting natural sunlight high end real estate interior design clean spacious and elegant