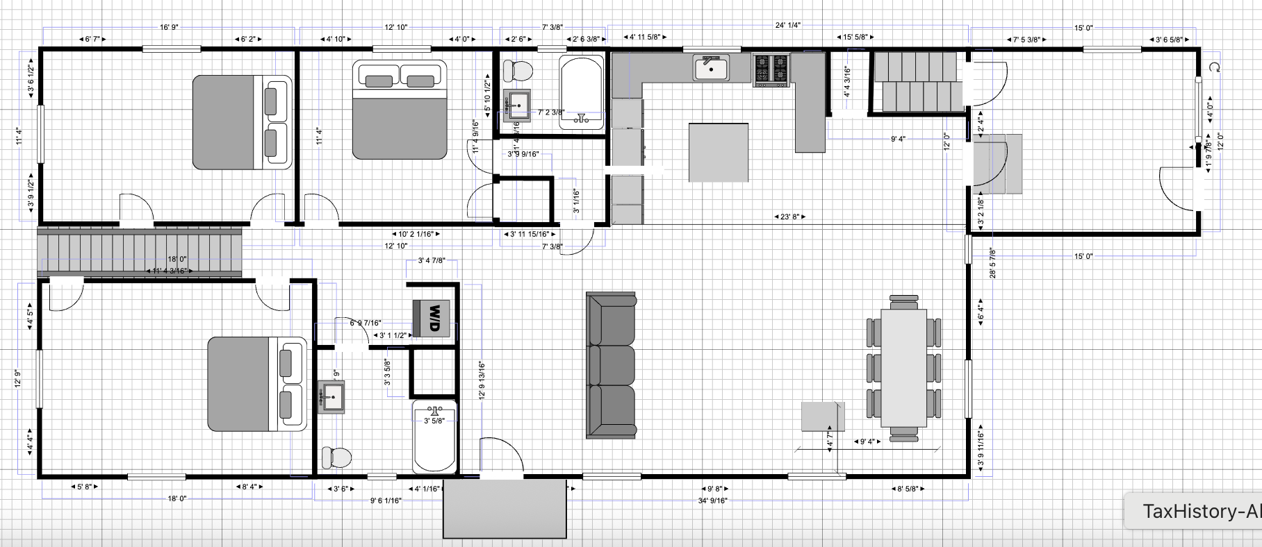
generate a detailed architectural floor plan from the provided layout include wall thicknesses interior vs exterior door swings and window tags room labels and dimensions furniture layout scaled add layers structural elements load bearing walls circulation paths ceiling height annotations style clean black and white architectural drafting style with optional shaded presentation version export presentation ready plan construction ready annotated plan