archsynth
Sign Up
Open main menu
Image to 3d model
Compare
Testimonials
Contact us
Log in
→
Signup
Archsynth generation
Input image
Copy Prompt
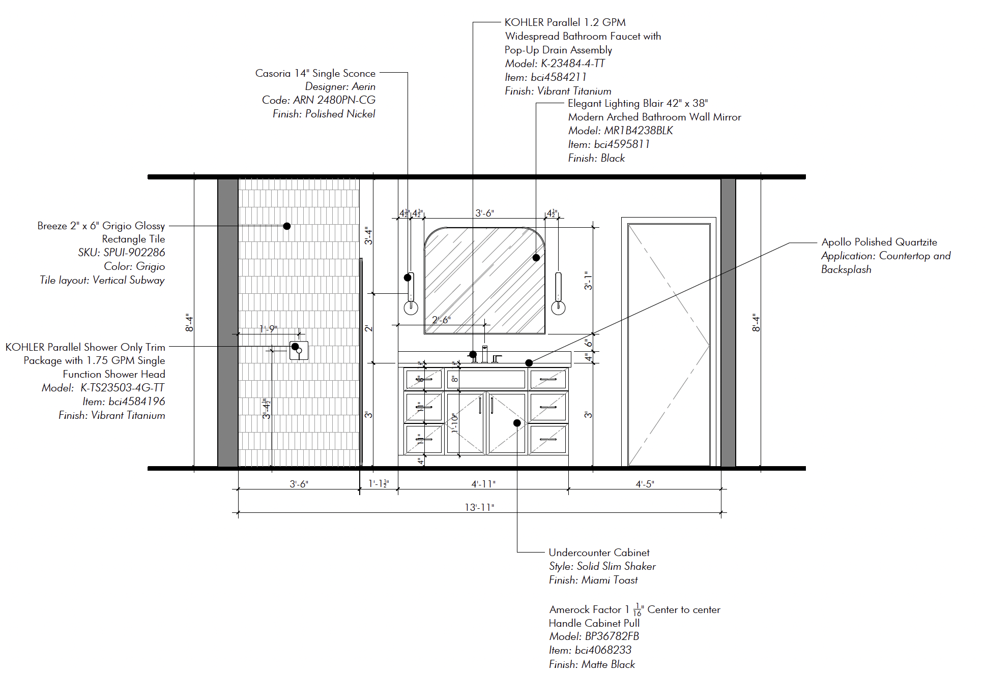
add glass 3 6 from left wall include tile only within the the left wall and shower glass tile breeze 2 x 6 grigio glossy floor tile moroccan limestone 12 x 24 sahara matte case finish matte vanity color solild slim shaker finish miami toast
Freestyle
strength 75
seed 10
Start Creating Renders Now
Related Posts
Start Creating Renders Now
View more