archsynth
Sign Up
Open main menu
Image to 3d model
Compare
Testimonials
Contact us
Log in
→
Signup
Archsynth generation
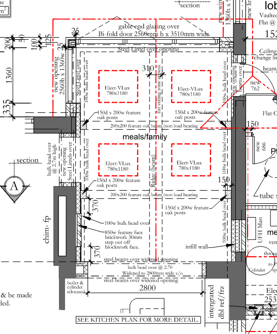
Input image
Copy Prompt
produce an internal view of the meals family roof vaulted ceiling feature oak posts and colour ties architecture
3D Optimized
strength 100
seed 10
Start Creating Renders Now
Related Posts
Start Creating Renders Now
View more