archsynth
Sign Up
Open main menu
Image to 3d model
Compare
Testimonials
Contact us
Log in
→
Signup
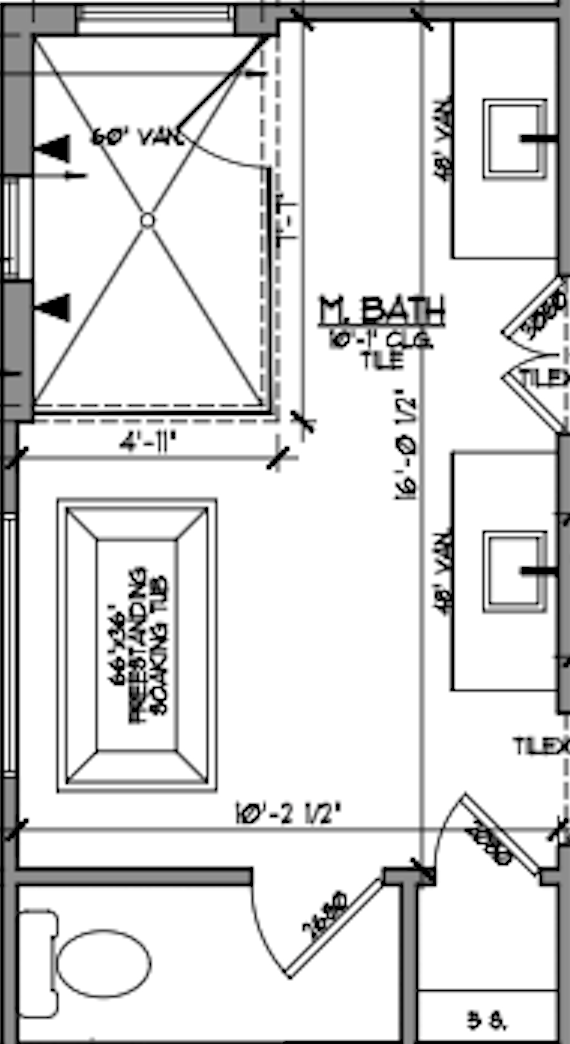
Archsynth generation
Input image
Copy Prompt
zaha hadid interior from the top this is a master bath layout architecture
by Architect
strength 75
seed 4723
Start Creating Renders Now
Related Posts
Start Creating Renders Now
View more