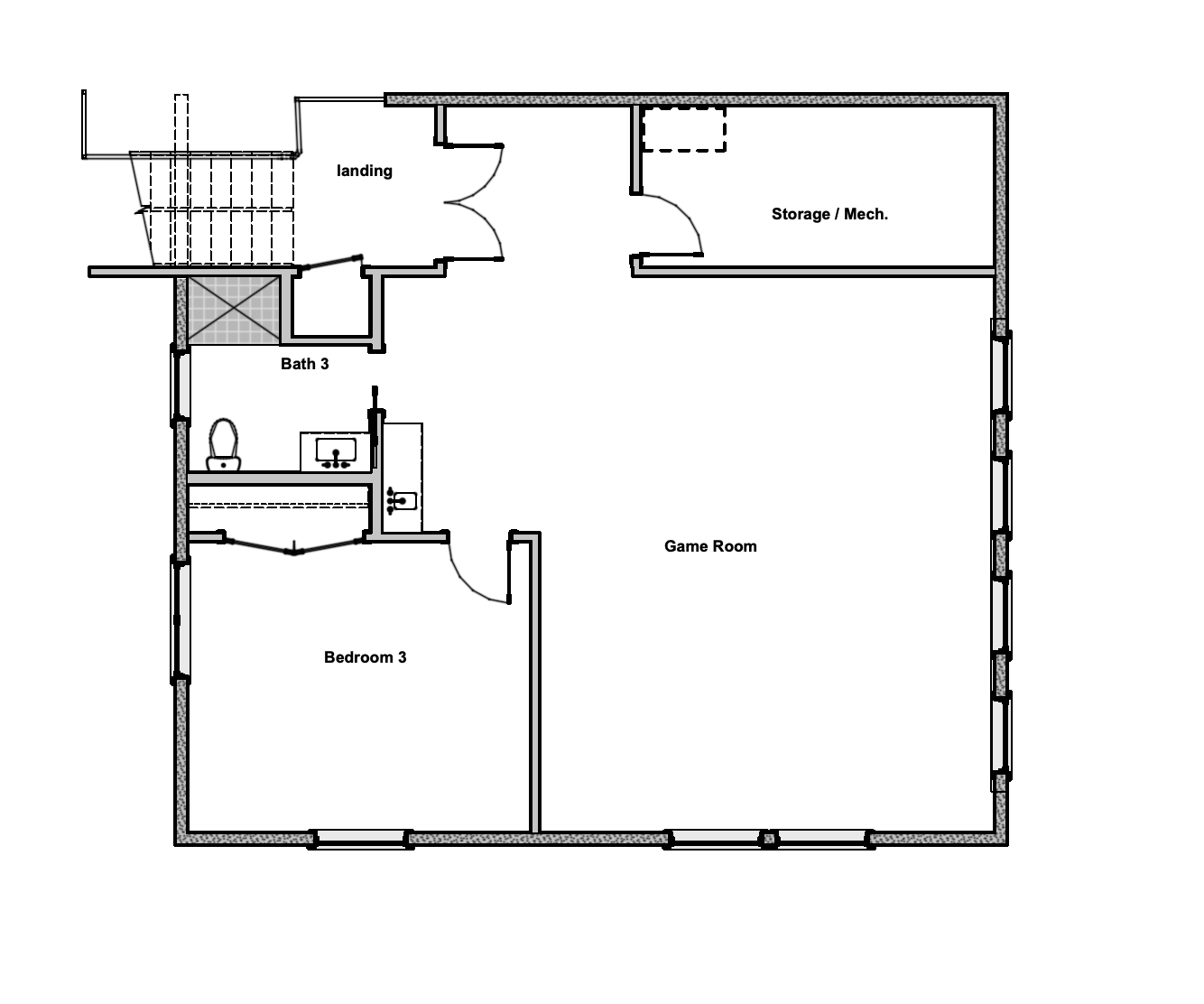
convert this floor plan into a realistic isometric 3d view of a full house show the space from an elevated angle with furniture walls and details visible bonus room plan with bedroom tiled bathroom game room with pingpong table couch seating area upper right corner stairs leading down to the rest of the house storage in the upper right use the same furniture as shows on the plan do not change the orientation of the floorplan