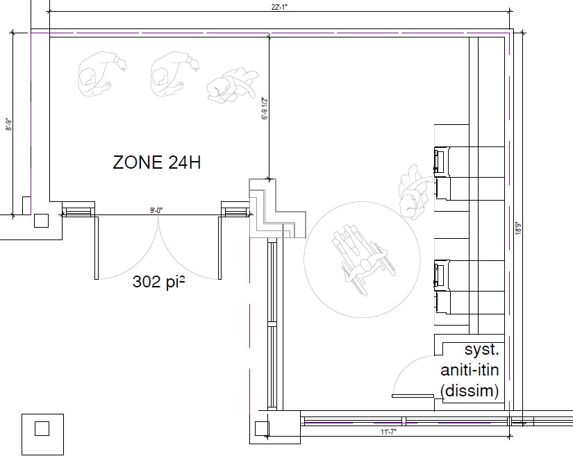
this is a desjardins atm room only acces is from the door on the plan south walls are all windows from floor to ceiling the wall behind the 2 atm is dalia k24 laminate from uniboard ceiling is at 12 feet high tiles on the floor are 24x24 inch frammenti bianco morning light outside windows frame is a grey brushed finish