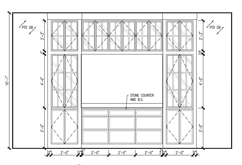
i d like to create a 3d rendering of the elevation this is a dining room i d like built ins to be a dusty blue color the room will have wallpaper light green chinoisirie with birds and flowers crown moulding will match the blue of the built ins vertically fluted glass inside cabinet doors and doors drawers will have reeded detail there will be a large window with black mullions on the adjacent wall