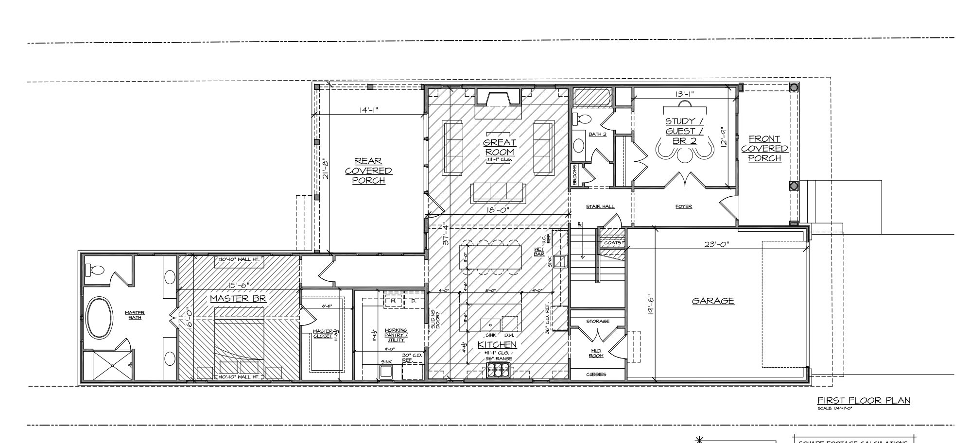
convert this floor plan into a realistic isometric 3d view of a full house show the space from an elevated angle with furniture walls and details visible create a beautiful realistic rendering of a two story house with a modern design the house features composition shingles colored in a deep charcoal gray use smooth hardie boards as siding in a soft muted slate blue the trim is crisp white highlighting the architectural details the garage door has a natural wood finish the atmosphere is serene and inviting set against a clear blue sky add lush green landscaping around the house with colorful flowers for a vibrant touch the lighting is warm suggesting a late afternoon sun casting gentle shadows use the same furniture as shows on the plan do not change the orientation of the floorplan