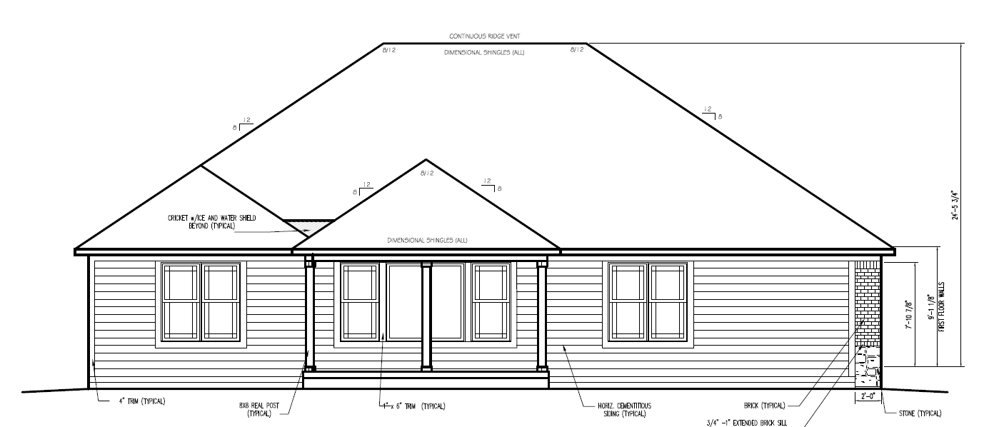
make the shingles windows and gutters black soffit colored felted wool make siding urbane bronze keep hip roofline remove corbels and brick and stone make posts felted wool color