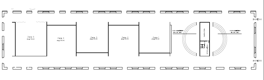
neoclassical interior from the top agisci come un grande allestitore senior esperto nella progettazione di mostre dedicate al razionalismo architettonico italiano con una profonda conoscenza dell opera di enrico del debbio e del linguaggio del razionalismo monumentale ti viene fornita una planimetria rettangolare vedi riferimento con le seguenti dimensioni lato corto 24 5 metri lato lungo 112 metri lo spazio espositivo corrisponde a quello rappresentato nell immagine di un grande ambiente industriale navata con pilastri luce naturale laterale struttura a capriate e devi rispettarne l identit architettonica valorizzandone la matericit la scansione strutturale e la luce obiettivo progettare un allestimento per una mostra dedicata a enrico del debbio organizzando lo spazio in modo coerente con i principi del razionalismo italiano un linguaggio contemporaneo ma con richiami monumentali un percorso chiaro leggibile e gerarchico linee guida progettuali impostazione generale organizza lo spazio con un impianto rigoroso assiale e modulare i pannelli espositivi devono essere posizionati al centro della navata come nell ipotesi del primo pdf schema con setti centrali paralleli mantieni liberi i lati per la circolazione e per valorizzare le pareti esistenti ingresso e accoglienza prima dell inizio della mostra inserisci un bancone biglietteria all inizio dello spazio prima del percorso espositivo il bancone deve essere accessibile su pi lati fruibile a 360 integrato con un area bookshop prevedi guardaroba spogliatoi per il personale inserisci sedute dal design originale coerenti con il linguaggio razionalista volumi puri materiali come legno metallo pietra percorso espositivo struttura un percorso lineare ma fluido lungo l asse longitudinale i pannelli centrali devono creare sequenze narrative tematiche avere ritmo modulare coerente con la struttura dei pilastri alterna pannelli bidimensionali elementi tridimensionali plastici modelli architettonici prevedi zone di pausa e contemplazione spazi funzionali e ritmo suddividi lo spazio in capitoli espositivi es opere pubbliche foro italico progetti urbani disegni integra le partizioni con la griglia strutturale esistente usa la luce naturale come elemento progettuale linguaggio architettonico stile moderno con richiamo al razionalismo monumentale italiano geometrie pure simmetria e proporzione materiali sobri intonaco metallo pietra legno naturale palette neutra con accenti calibrati esperienza del visitatore il visitatore deve percepire ordine monumentalit chiarezza spaziale il percorso deve essere intuitivo senza bisogno di segnaletica invasiva output richiesto descrivi nel dettaglio schema distributivo completo organizzazione funzionale degli spazi layout dei pannelli centrali posizione precisa di biglietteria bookshop guardaroba e servizi materiali e linguaggio formale esperienza spaziale e narrativa architecture