archsynth
Sign Up
Open main menu
Image to 3d model
Compare
Testimonials
Contact us
Log in
→
Signup
Archsynth generation
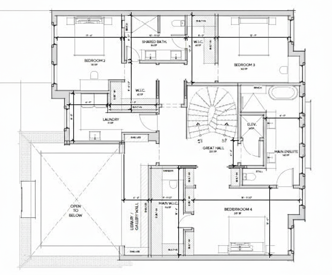
Input image
Copy Prompt
convert the ensuite bathroom into a jack and jill bathroom with an entrance from the main bedroom and from bedroom 3
Remix
strength 75
seed 10
Start Creating Renders Now
Related Posts
Start Creating Renders Now
View more