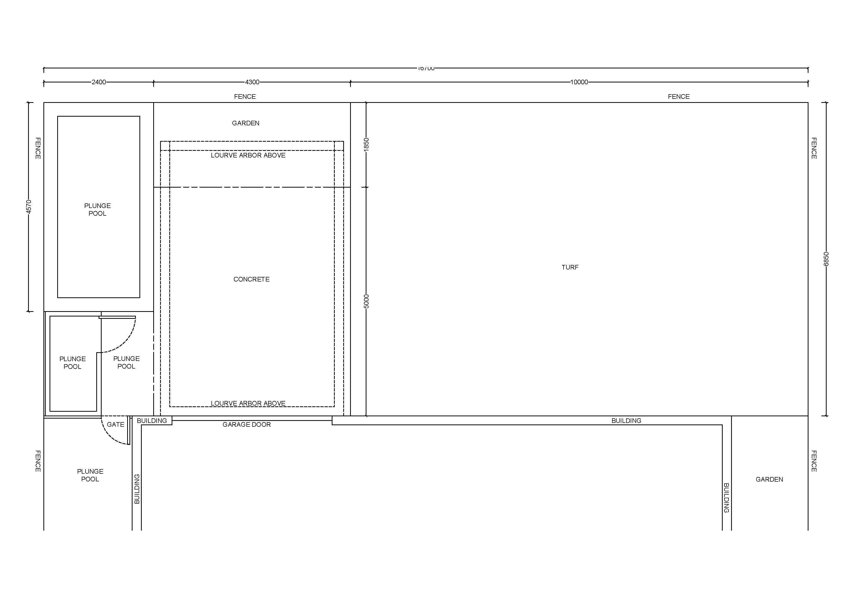
mediterranean revival aerial shot backyard 16 7m wide x 6 85 high burnt timber sauna in left sw corner under and adjacent to pool pool is in nw corner against aluminium fence and has no spa the 5m x 4 3m concrete paving with a 6m x 4m lourver pergola above the paving the 10m wide x 6 75m high turf is to right side of the yard running left to right with timber fence to top and right side architecture