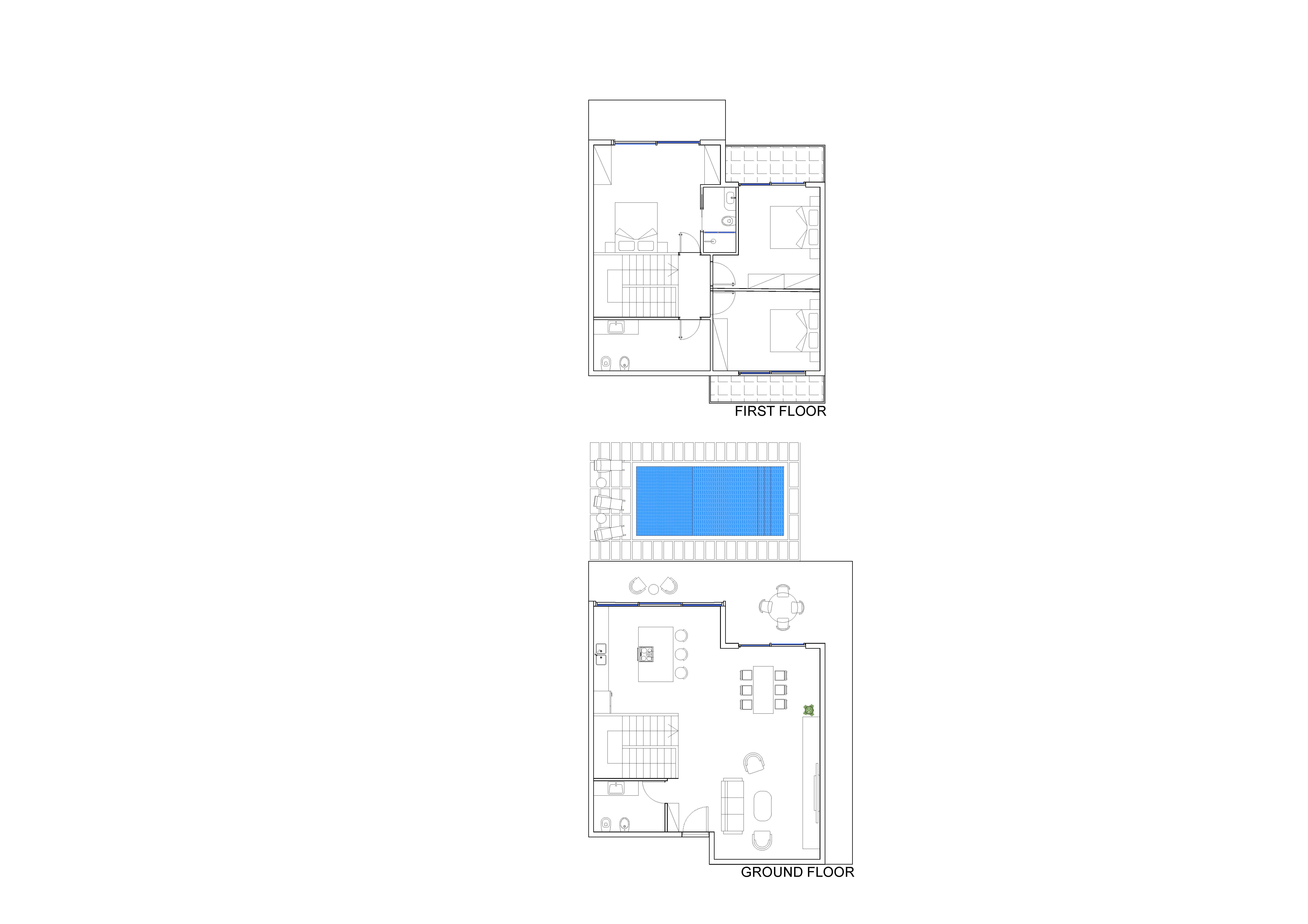
convert this floor plan into a realistic isometric 3d view of a full house show the space from an elevated angle with furniture walls and details visible a modern minimalist residential layout organized across two levels defined by a clear spatial hierarchy and indoor outdoor continuity the ground floor is conceived as an open plan living zone where kitchen dining and lounge areas are seamlessly integrated a central island anchors the kitchen establishing both functional and social interaction large openings extend the interior towards the outdoor terrace and pool enhancing spatial depth and natural light penetration the exterior features a linear swimming pool clad in light toned ceramic accompanied by a minimal seating area that reinforces a calm resort like atmosphere the upper level accommodates the private quarters including a master bedroom and two secondary bedrooms organized around a compact circulation core the layout prioritizes privacy while maintaining visual continuity with the exterior through controlled openings materiality is kept warm and restrained with wood flooring neutral surfaces and soft textures reinforcing a refined and timeless spatial character use the same furniture as shows on the plan do not change the orientation of the floorplan