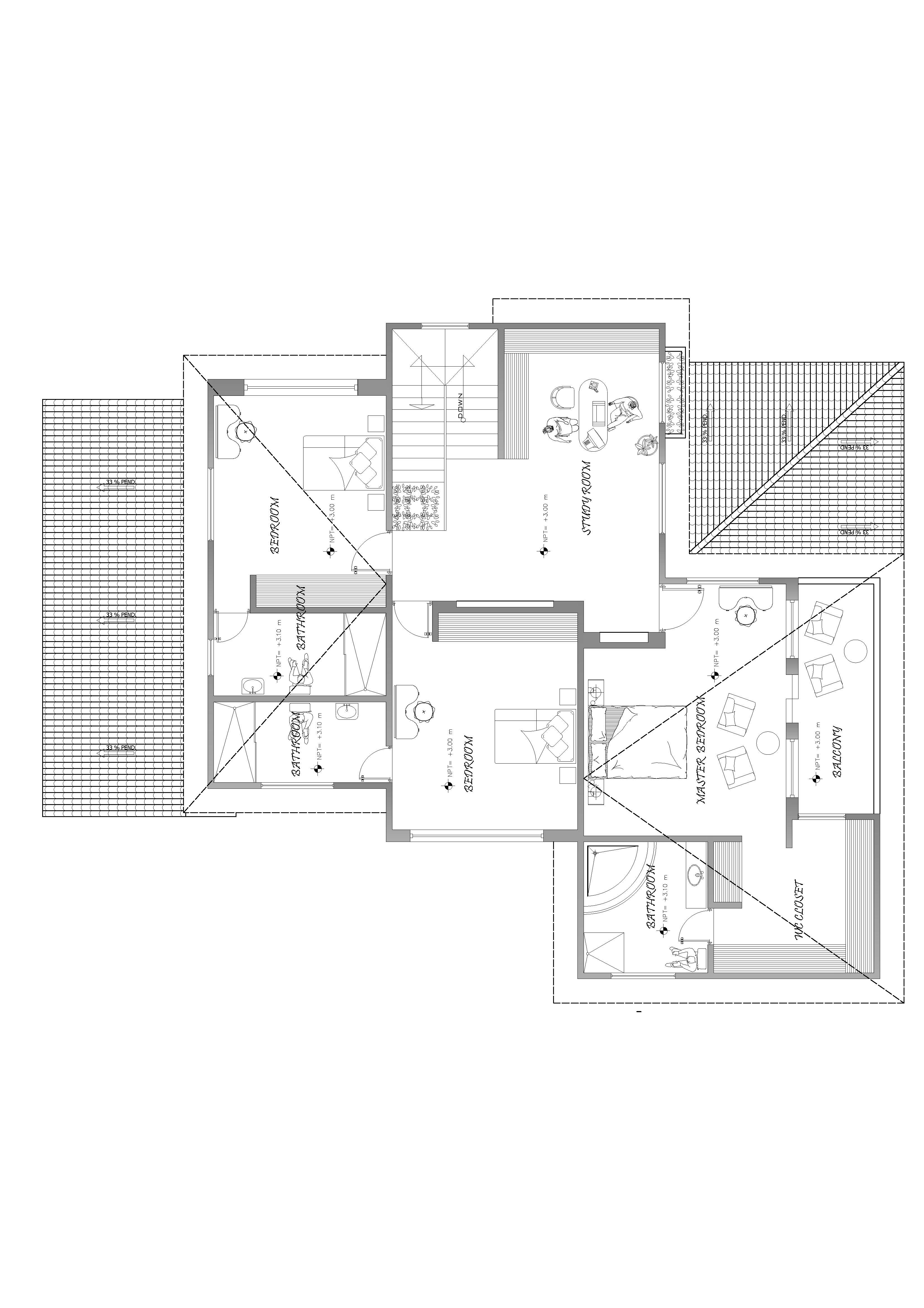
a beautifully rendered architectural floor plan showcasing a vibrant and modern aesthetic the walls should be depicted in a sleek toned beige conveying stability and elegance furnishings and built in fixtures like kitchen counters and sofas are with luxury finishes exuding energy and sophistication soft lighting fills the space with ambient golden hues illuminating key areas to create warmth and luxury flooring is desaturated wood parquet with tiles in kitchen and bathrooms to complete the atmosphere lush greenery is strategically placed offering a refreshing contrast and enhancing the serene refined ambiance throughout the layout