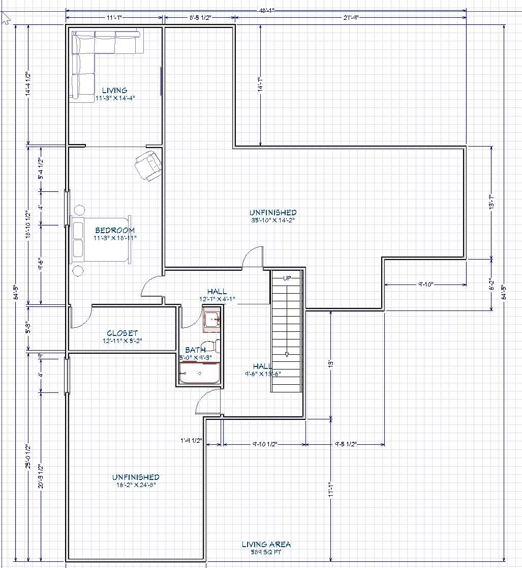
convert this floor plan into a realistic isometric 3d view of a full house show the space from an elevated angle with furniture walls and details visible this looks great but remove the window in the living room and also the living room is just an extension of the bedroom and it is just that square it isn t attached to the rest of the basement use the same furniture as shows on the plan do not change the orientation of the floorplan