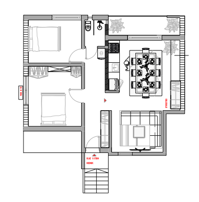
convert this floor plan into a realistic isometric 3d view of a full house show the space from an elevated angle with furniture walls and details visible keep everything as it is next to table is wardrobe with mirored doors table is black with luks chairs use the same furniture as shows on the plan do not change the orientation of the floorplan