archsynth
Sign Up
Open main menu
Image to 3d model
Compare
Testimonials
Contact us
Log in
→
Signup
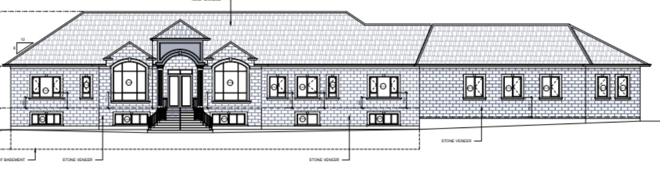
Archsynth generation
Input image
Copy Prompt
can you illustrate this drawing exactly to scale but with white stone and black roof and make the front entryway and two side peaks look a bit better aesthetically
Maintain Colors (v2)
strength 75
seed 10
Start Creating Renders Now
Related Posts
Start Creating Renders Now
View more