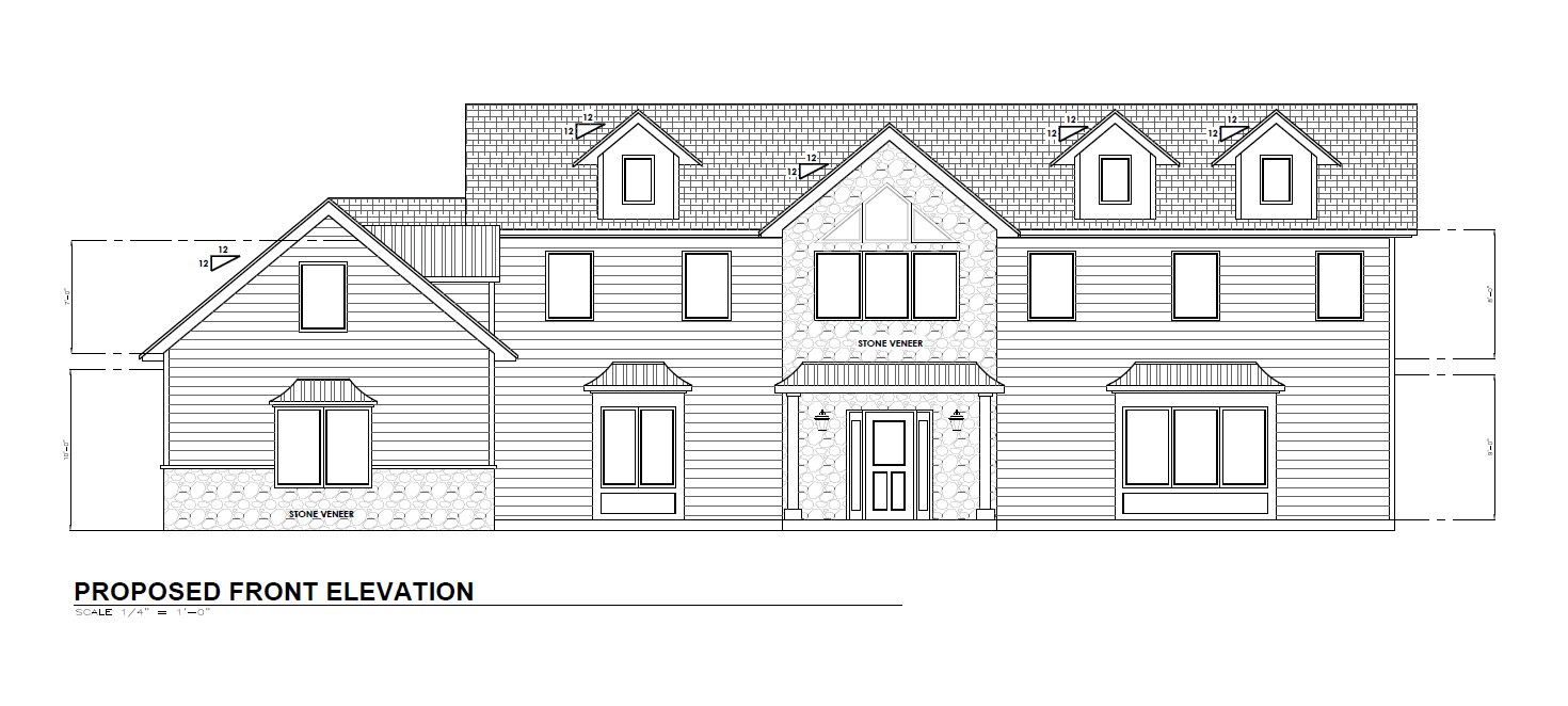
a charming two story house with a gable roof and dormer windows clad in light gray siding the stone veneer accents at the entrance are in soft beige adding a rustic elegance roof shingles are a warm earthy brown large windows reflect the soft golden glow of a sunset the overall atmosphere is serene and inviting set against a backdrop of lush greenery and a clear pastel sky add dormer above left side rood