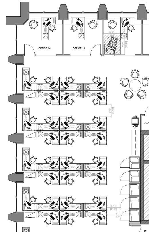
interior shot create office space with walnut soldi doors to offices and millwork glazing systems to have thin black structure sit stand desking systems to be walnut veneer with dark grey felt partitions on 3 sides chairs to be dark grey coloured flooring to be dark grey carpet view beyond windows to be of vancover s burrard inlet facing west follow the floorplan provided as image floorplate is from 200 granville street in vancouver bc add 2 monitors on every desk ceiling heights are 9 maximum add linear suspended lighting over desks architecture