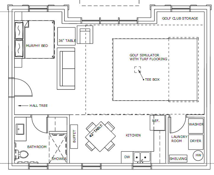
create rendered aerial floor plan with warm neutral floor plan white king bed at bedroom white sofa and club chair at living room green turf at golf simulator white marble floors and glass shower enclosure inside bathroom only kitchen has white marble countertops and stainless steel refrigerator warm medium wood flooring white draperies with geometric pattern at the three windows along the top wall