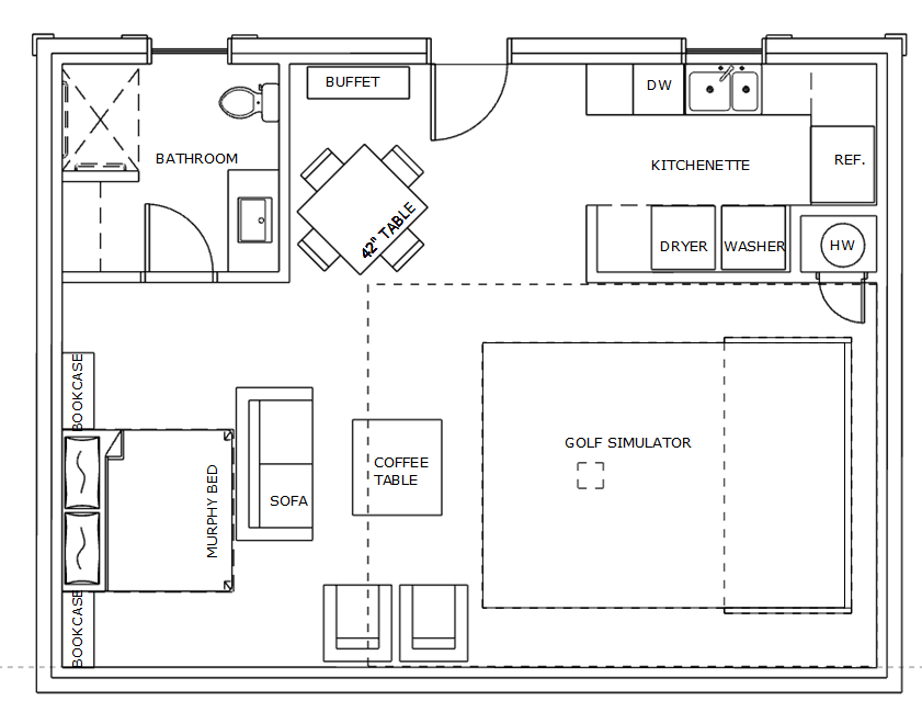
create rendered aerial plan view of cottage apartment in warm neutral palate only the bathroom has white marble floors kitchenette has white cabinets with white marble countertops and stainless steel appliances white 42 table with upholstered chairs and warm wood buffet only the golf simulator has green turf floors and projection screen at east wall living area bedroom and kitchenette have medium wood flooring living area has white sofa and chairs with colorful accent pillows bedroom space has white king bed with tall bookcases on each side