archsynth
Sign Up
Open main menu
Image to 3d model
Compare
Testimonials
Contact us
Log in
→
Signup
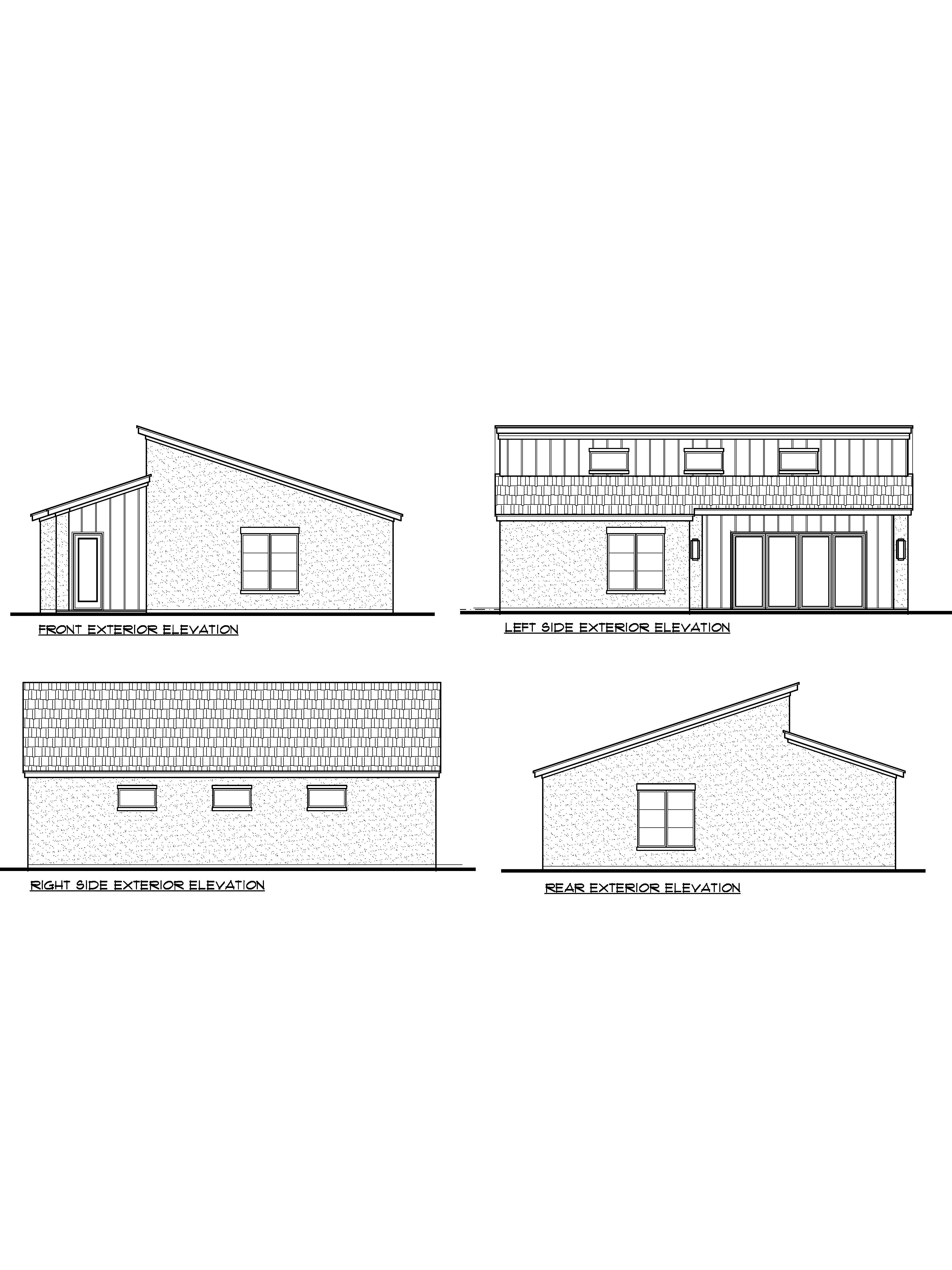
Archsynth generation
Input image
Copy Prompt
combined the elevations to a 3d model black roof white paint dark gray where the vertical lines are architecture
3D Optimized
strength 75
seed 10
Start Creating Renders Now
Related Posts
Start Creating Renders Now
View more