archsynth
Sign Up
Open main menu
Image to 3d model
Compare
Testimonials
Contact us
Log in
→
Signup
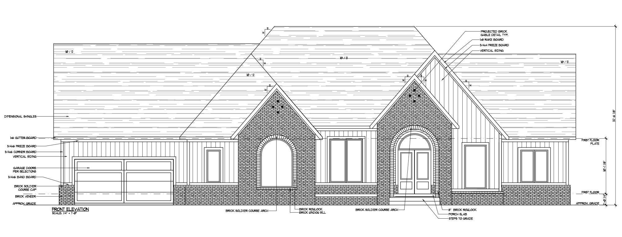
Archsynth generation
Input image
Copy Prompt
make the roof a dark charcoal brick a light cream black windows and vertical siding clay beige benjamin moore paint color include full landscaping
Freestyle
strength 75
seed 8703
Start Creating Renders Now
Related Posts
Start Creating Renders Now
View more