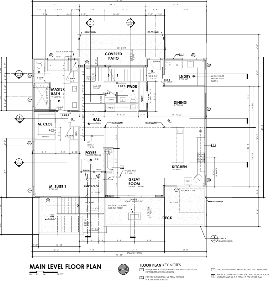
convert this floor plan into a realistic isometric 3d view of a full house show the space from an elevated angle with furniture walls and details visible mountain modern lake home wood stone and black metal finishes use the same furniture as shows on the plan do not change the orientation of the floorplan