archsynth
Sign Up
Open main menu
Image to 3d model
Compare
Testimonials
Contact us
Log in
→
Signup
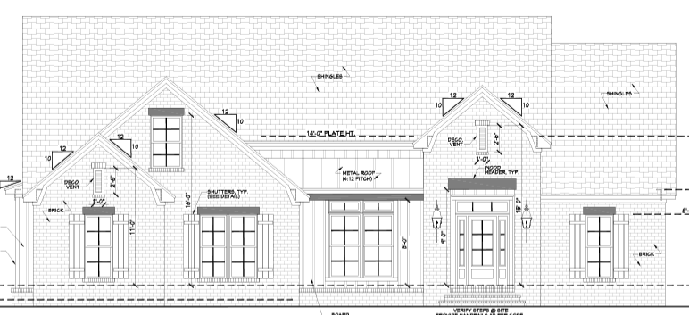
Archsynth generation
Input image
Copy Prompt
architectural hand sketch rendering of a new american home with red brick similar to the one in the referenced image white board and batten front wall of porch and dark shingles and shutters
Freestyle
strength 75
seed 10
Start Creating Renders Now
Related Posts
Start Creating Renders Now
View more