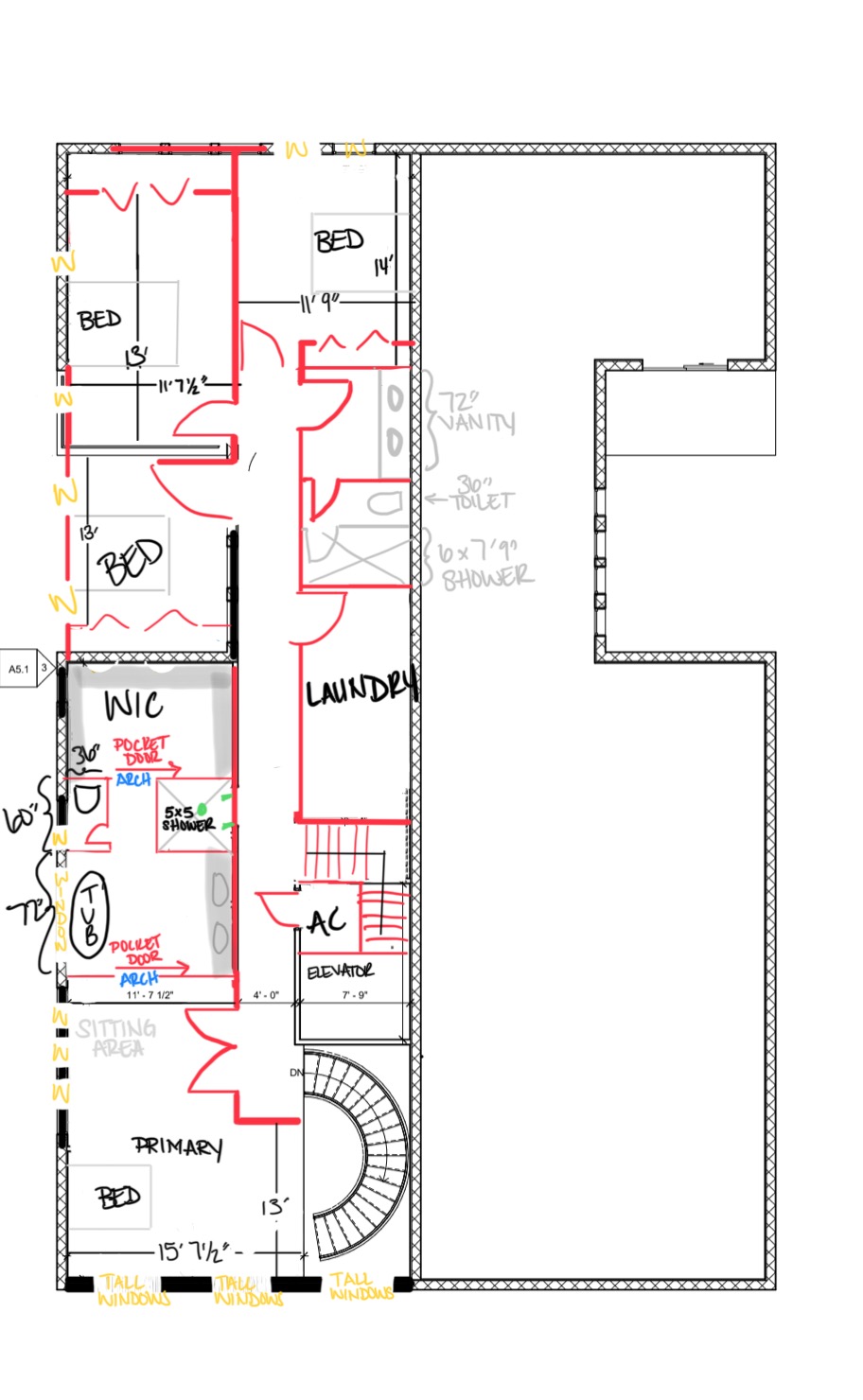
organic modern vibe place 3 floor to ceiling black aluminum framed windows where it says center windows make from section at top of stairs 2 guest bedrooms with jack and jill bathroom and entire back the primary suite change back pportion to primary suite and front portion to 2 bedrooms jack and jill bathroom