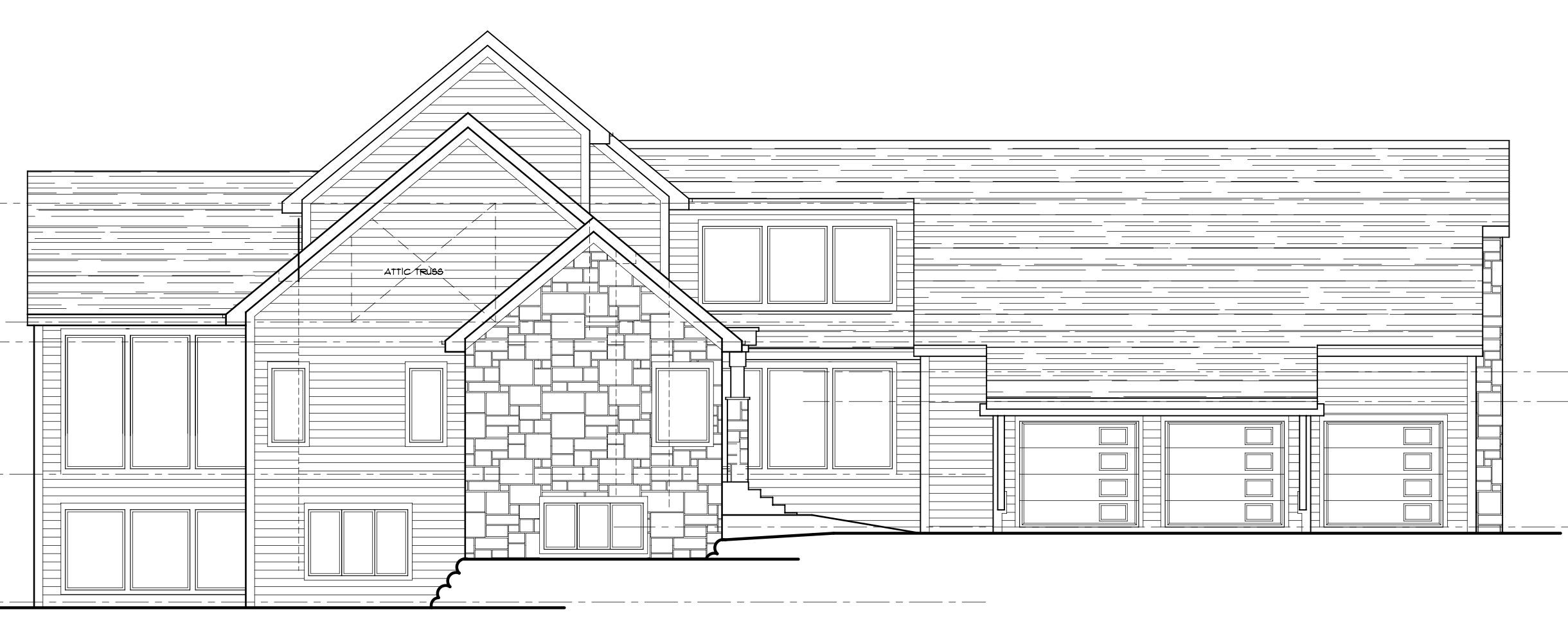
modern residential house elegant architectural design with a blend of natural materials and colors the exterior features black shingles and black trim the stone fa ade is adorned with various shades of beige and light gray for a natural rugged look large windows invite natural light and have sleek black frames the garage doors are a rich dark mahogany wood a well manicured lawn surrounds the house with a few ornamental plants the atmosphere is peaceful and inviting under a clear blue sky with soft warm sunlight enhancing the colors