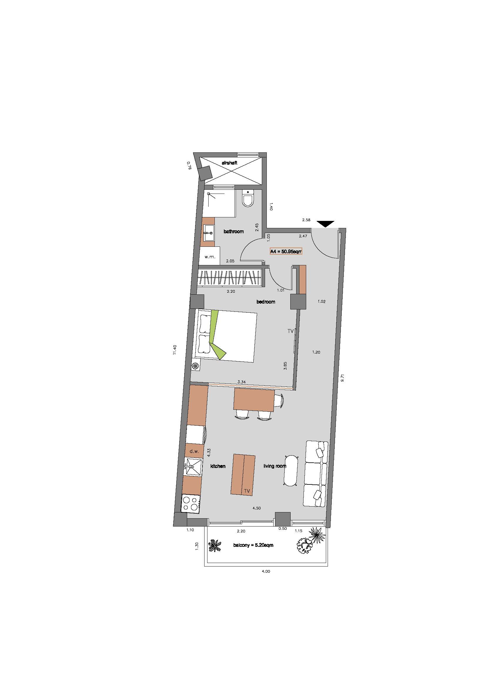
convert this floor plan into a architectural isometric 3d view of a full house show the space from an elevated angle with furniture walls and details visible a high quality 3d photorealistic interior architectural render of the modern apartment shown in the floor plan the view is a top down 3d isometric perspective with the ceiling removed to show the interior layout the apartment features a bright living room with a white sofa and light grey large rectangular tile flooring a compact modern kitchen with integrated appliances a cozy bedroom with a neatly made bed and built in wardrobes and a clean bathroom with the same grey tiles a small balcony with green plants is visible at the top the lighting is warm and natural coming from the large balcony windows modern minimalist furniture realistic textures 8k resolution professional architectural visualization use the same furniture as shows on the plan do not change the orientation of the floorplan