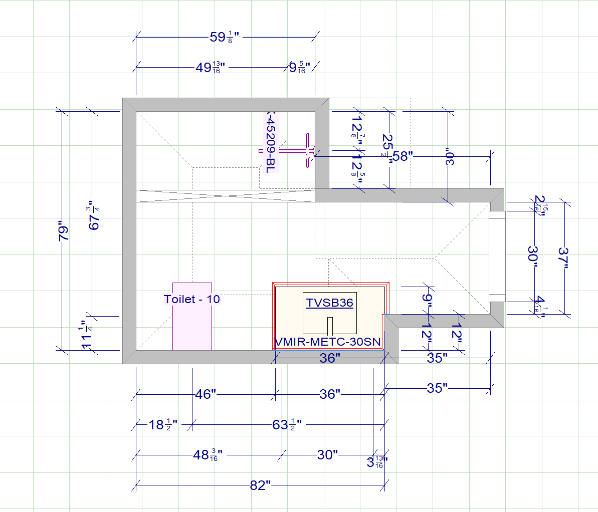
modernist exterior shot create a beautifully rendered 3d interior design based on a bathroom floor plan the color scheme includes soft whites and light grays for the walls and floors providing a clean and modern ambiance incorporate a stylish dark gray for the fixtures such as the toilet and sink to add contrast use light pink accents for towels and accessories for a hint of color introduce metallic silver fixtures for the shower and faucet to add elegance the atmosphere should feel tranquil and spa like with natural light streaming through a frosted glass window soft shadows and reflections enhance the serene mood architecture