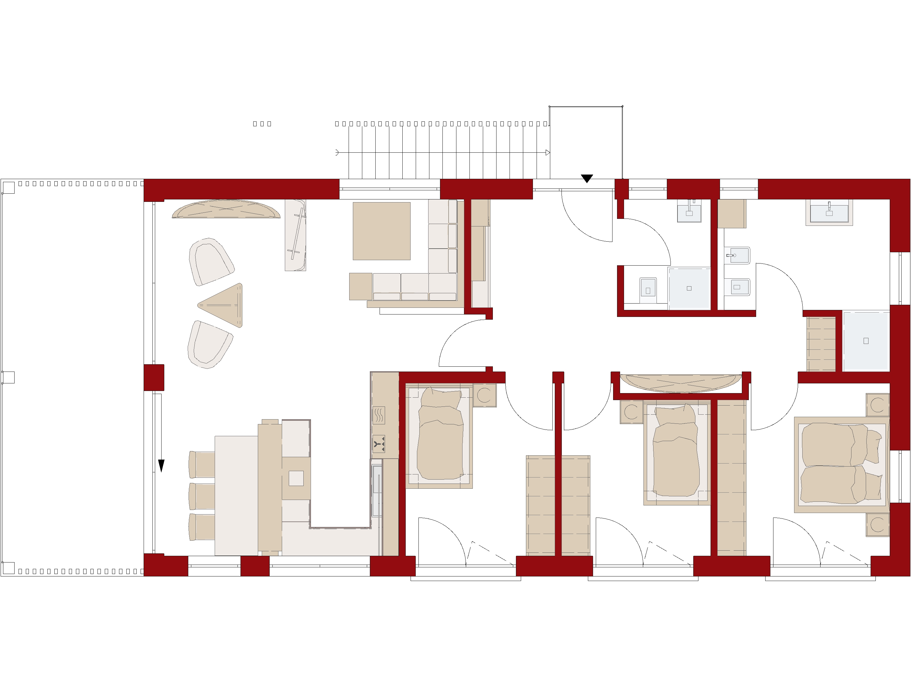
the floor plan is on the first floor so the gardens are one floor below