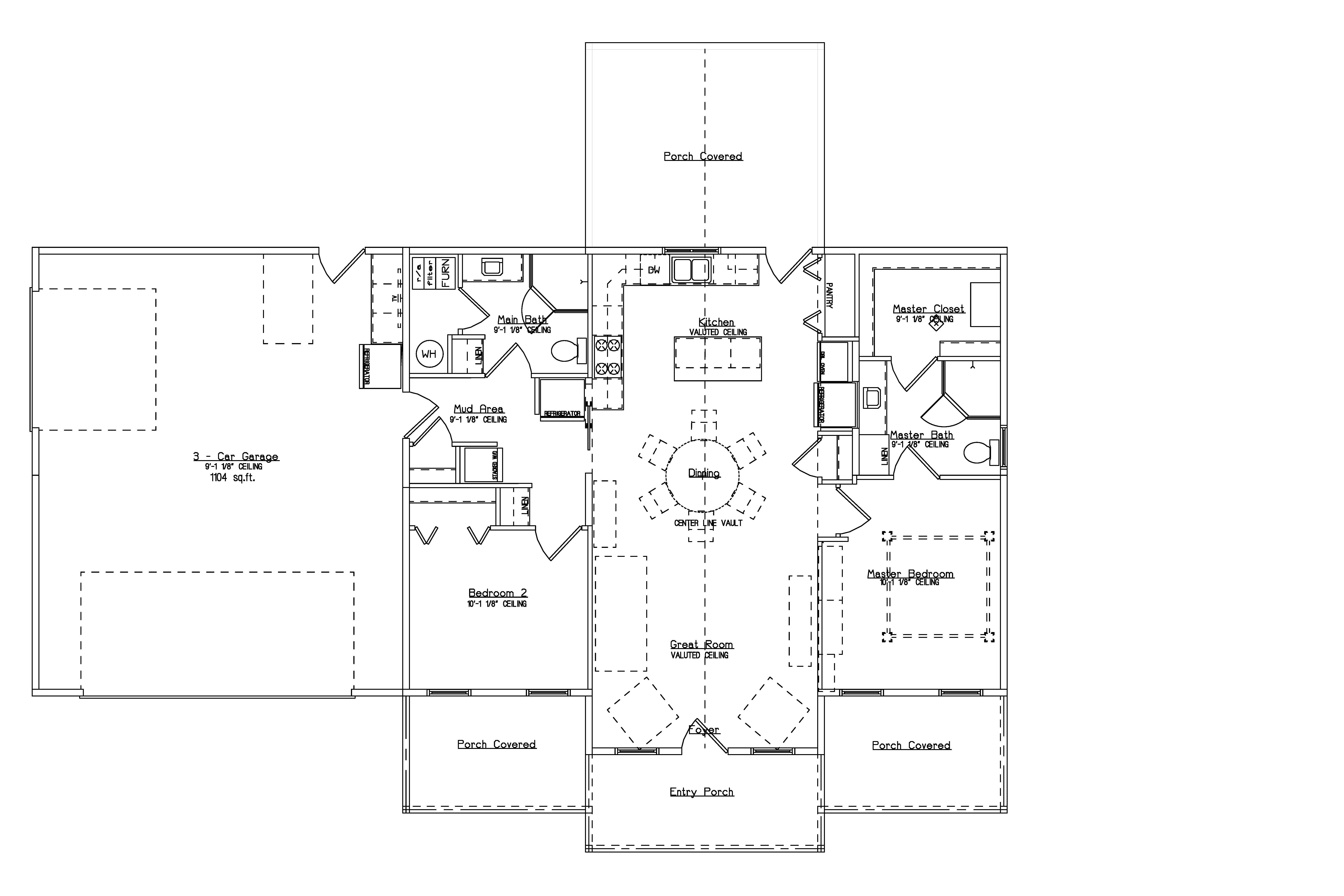
do not add any room or walls that are not on the existing image kitchen has sink rear wall with large window above and door to the right of the window to the rear porch dishwasher to the left of sink double oven and refrigerator on right side 36 cooktop and hood vent on left side both bathrooms have a neo angle tub vanity cabinet linen cabinet with single sink and a toilet garage has a double overhead garage door in the front and a single wide overhead garage door on the left wall porches are concrete flooring no railing porch posts with stone colunms water heater is where wh is on image no fireplace