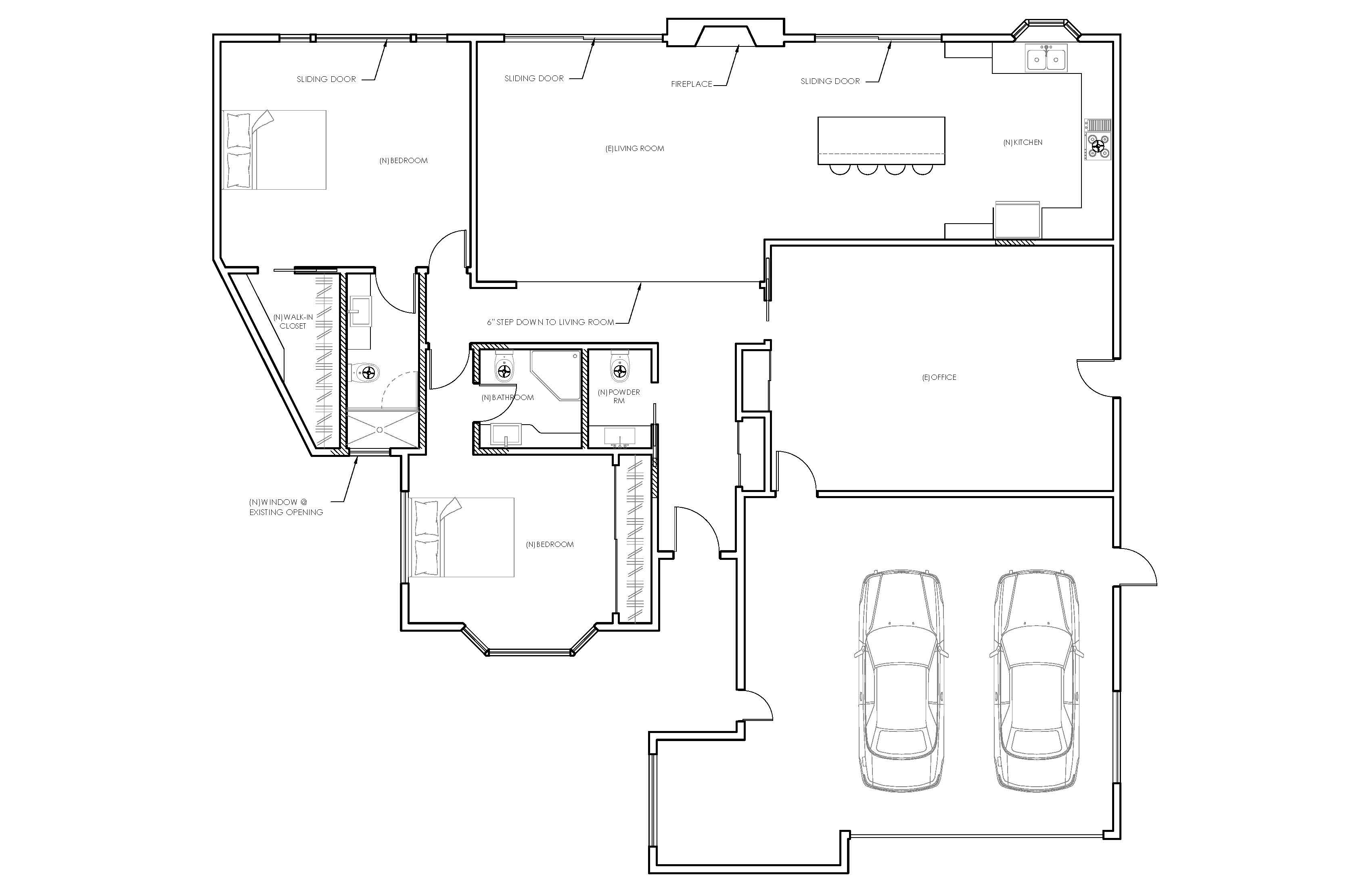
convert this floor plan into a realistic isometric 3d view of a full house show the space from an elevated angle with furniture walls and details visible beige grey laminate flooring in bedrooms living room kitchen and office concrete floor in garage grey beige modern furniture brick fireplace noting outside the house only simple white surface use the same furniture as shows on the plan do not change the orientation of the floorplan