archsynth
Sign Up
Open main menu
Image to 3d model
Compare
Testimonials
Contact us
Log in
→
Signup
Archsynth generation
Input image
Copy Prompt
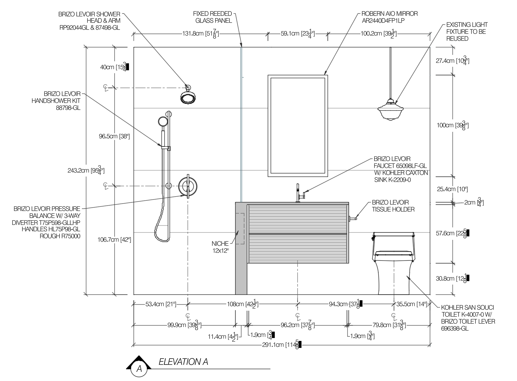
render elevation with reference to floorplan black 6 hexagon tiles on the floor walls with 24x48 calacatta pink tiles shower fixtures and faucet in brushed gold finish cabinet in reeded walnut finish
Freestyle
strength 75
seed 10
Start Creating Renders Now
Related Posts
Start Creating Renders Now
View more