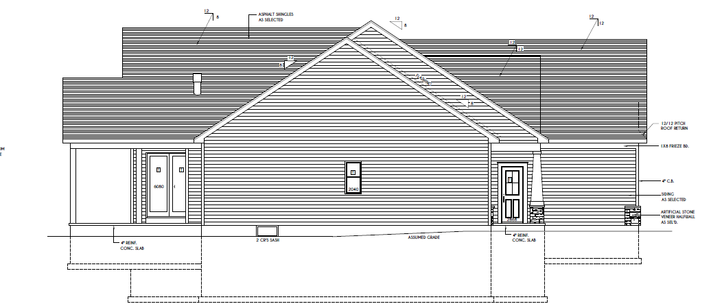
create a left elevation 3d rear rendering with all structural elements drawn untouched keep the angle as is apply the following selections a wolverine blue storm siding and timberline hdz charcoal black shingle roof veneer white windows white trim doors can be white or mahogany seed 10