archsynth
Sign Up
Open main menu
Image to 3d model
Compare
Testimonials
Contact us
Log in
→
Signup
Archsynth generation
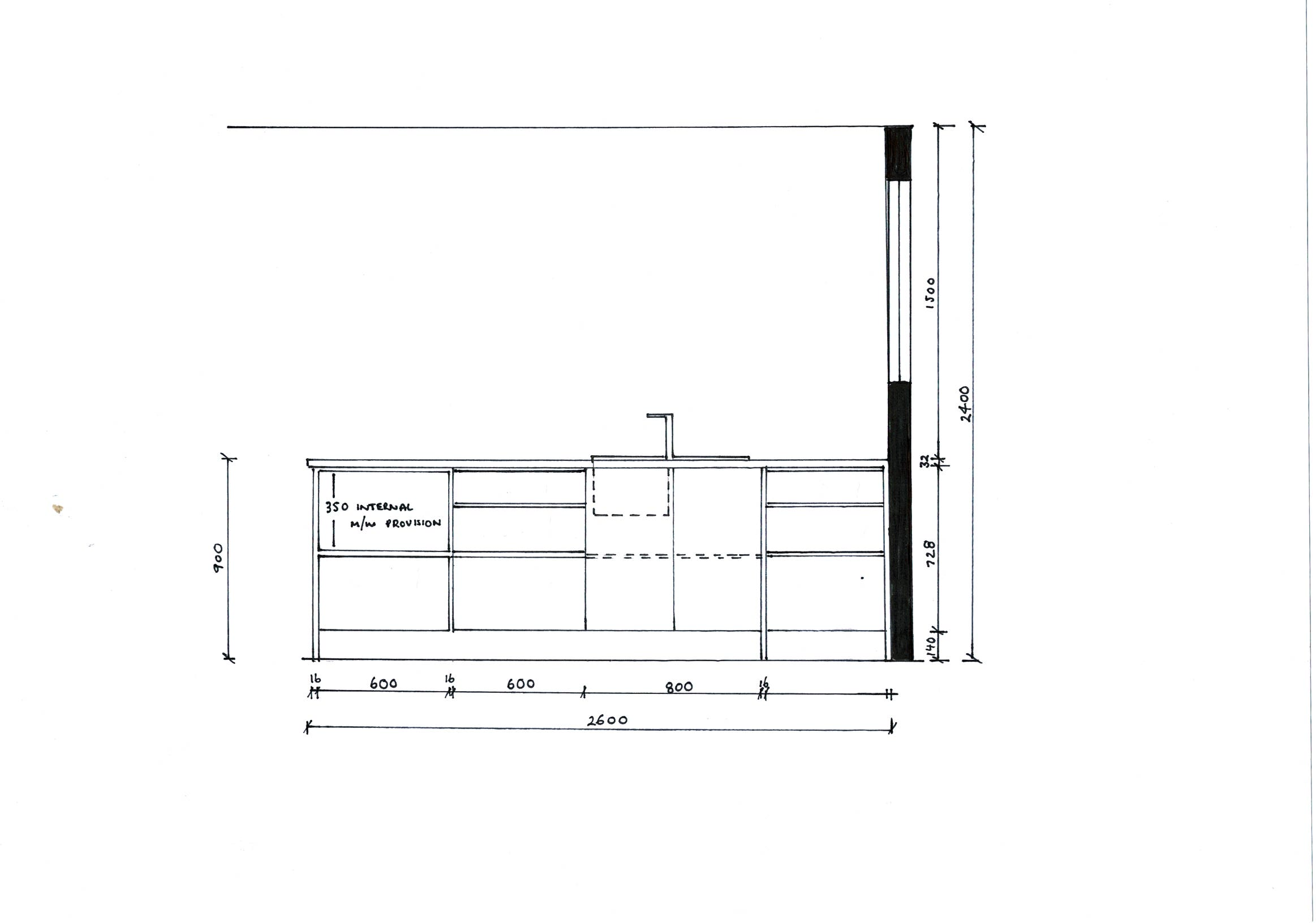
Input image
Copy Prompt
exterior shot remove dimensions and lines shower cabinetry in laminate parchment colour white stone benchtop microwave below bench to left hand side
Concept to Render
strength 75
seed 10
Start Creating Renders Now
Related Posts
Start Creating Renders Now
View more