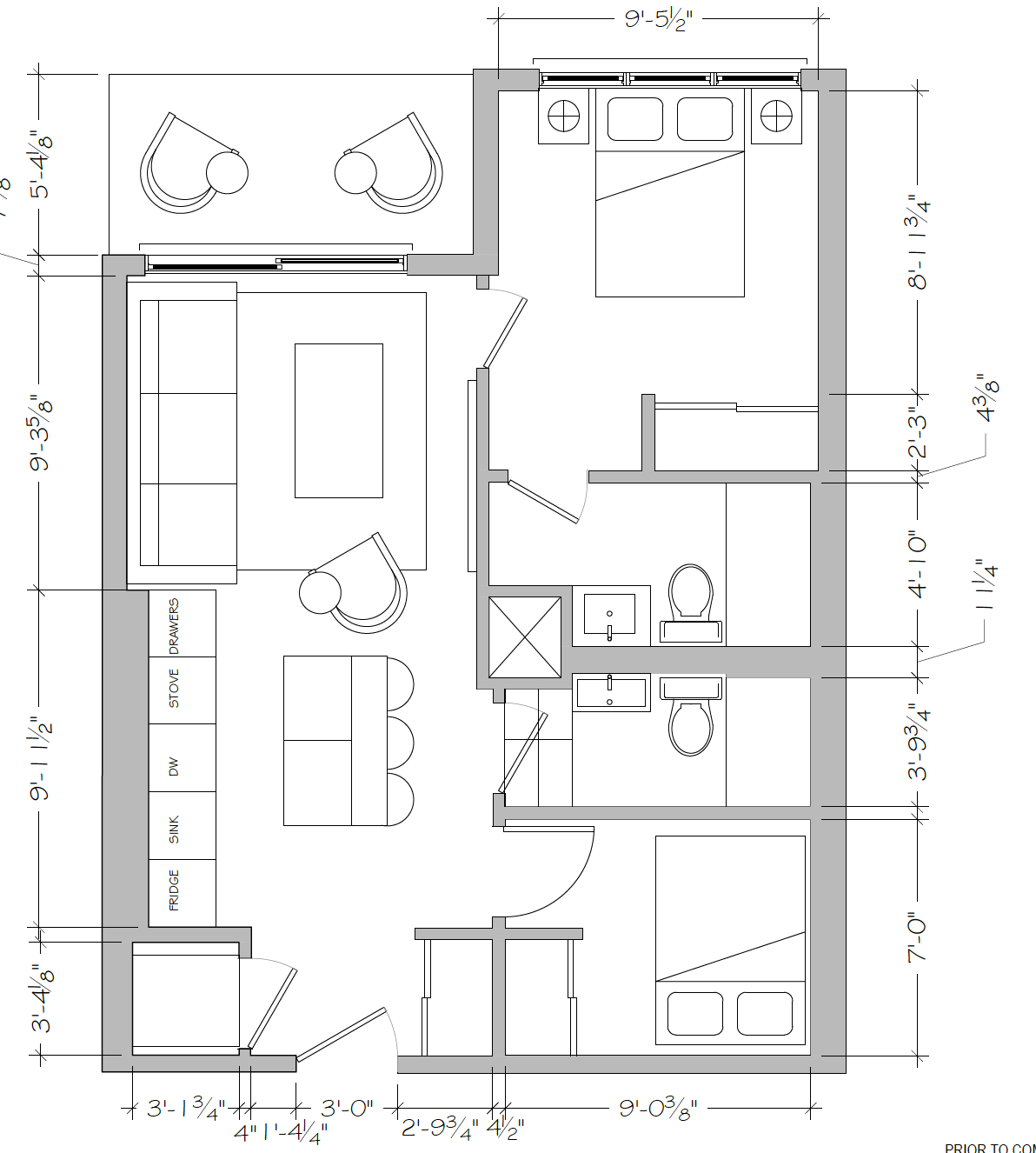
convert this floor plan into a modern isometric 3d view of a full house show the space from an elevated angle with furniture walls and details visible dramatic window frames black wood cabinets in a grey brown shade grey tile in bathrooms use the same furniture as shows on the plan do not change the orientation of the floorplan