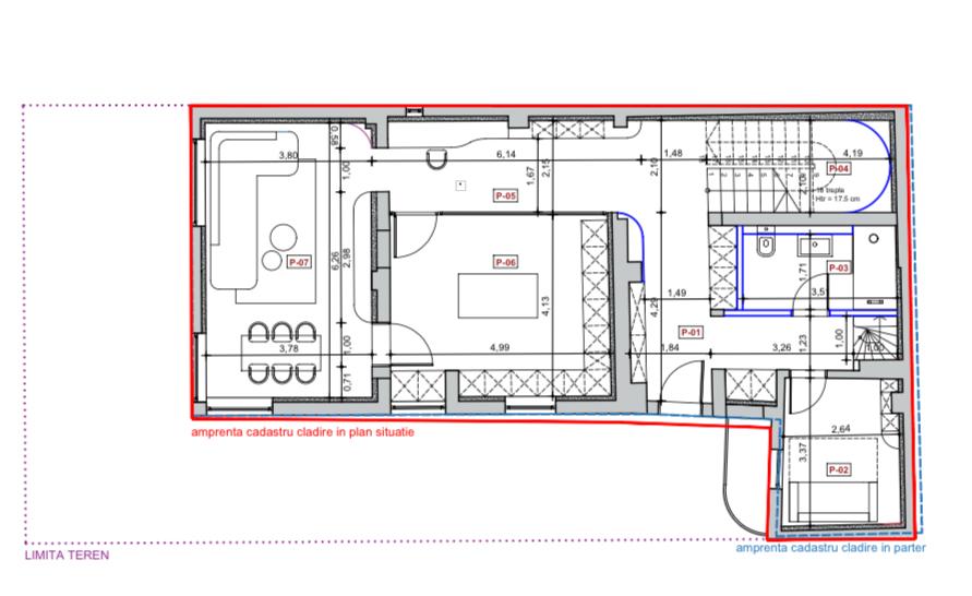
convert this floor plan into a realistic isometric 3d view of a full house show the space from an elevated angle with furniture walls and details visible i want to create an axonometric drawing with walls raised to a ceiling height of 3 meters with the furniture drawn in plan a warm atmosphere fishbone herringbone parquet flooring bathrooms finished with natural travertine stone and modern minimalist furniture we modify the front middle room to be the kitchen with furniture on two walls and an island in the middle in place of the kitchen is an office area and a bookshelf on the right the small middle room is the bathroom with a central entrance a large shower along the length of the wall and a sink with a mirror in the middle use the same furniture as shows on the plan do not change the orientation of the floorplan