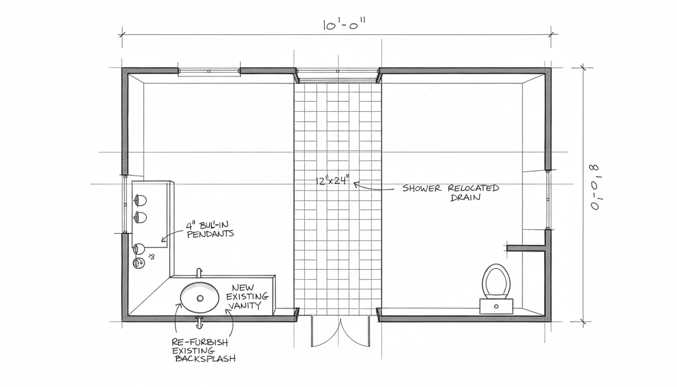
add lights