archsynth
Sign Up
Open main menu
Image to 3d model
Compare
Testimonials
Contact us
Log in
→
Signup
Archsynth generation
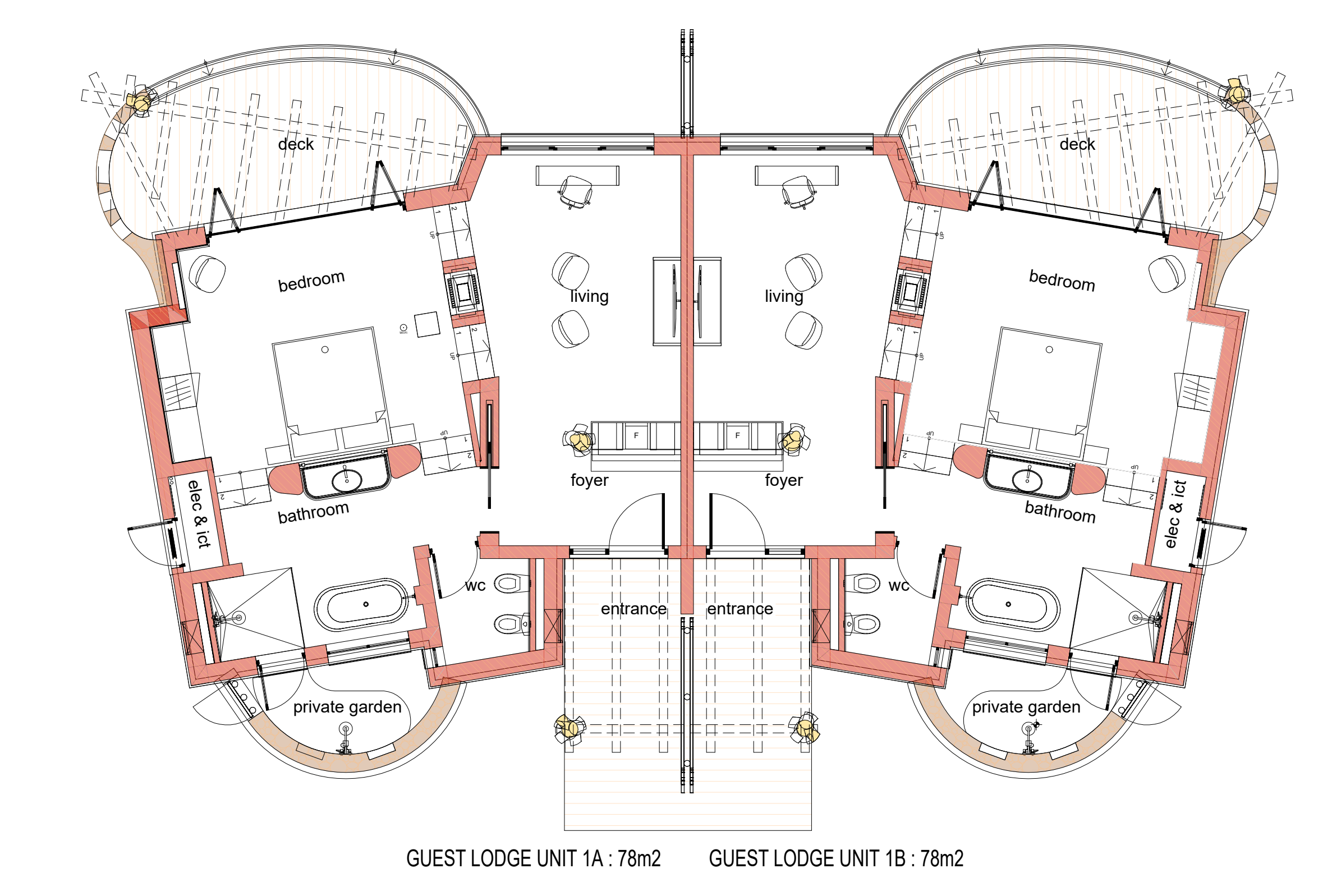
Input image
Copy Prompt
render this image as a plan view of a high end lodge internal floors are beige polished concrete
Maintain Colors (Precision)
strength 75
seed 10
Start Creating Renders Now
Related Posts
Start Creating Renders Now
View more