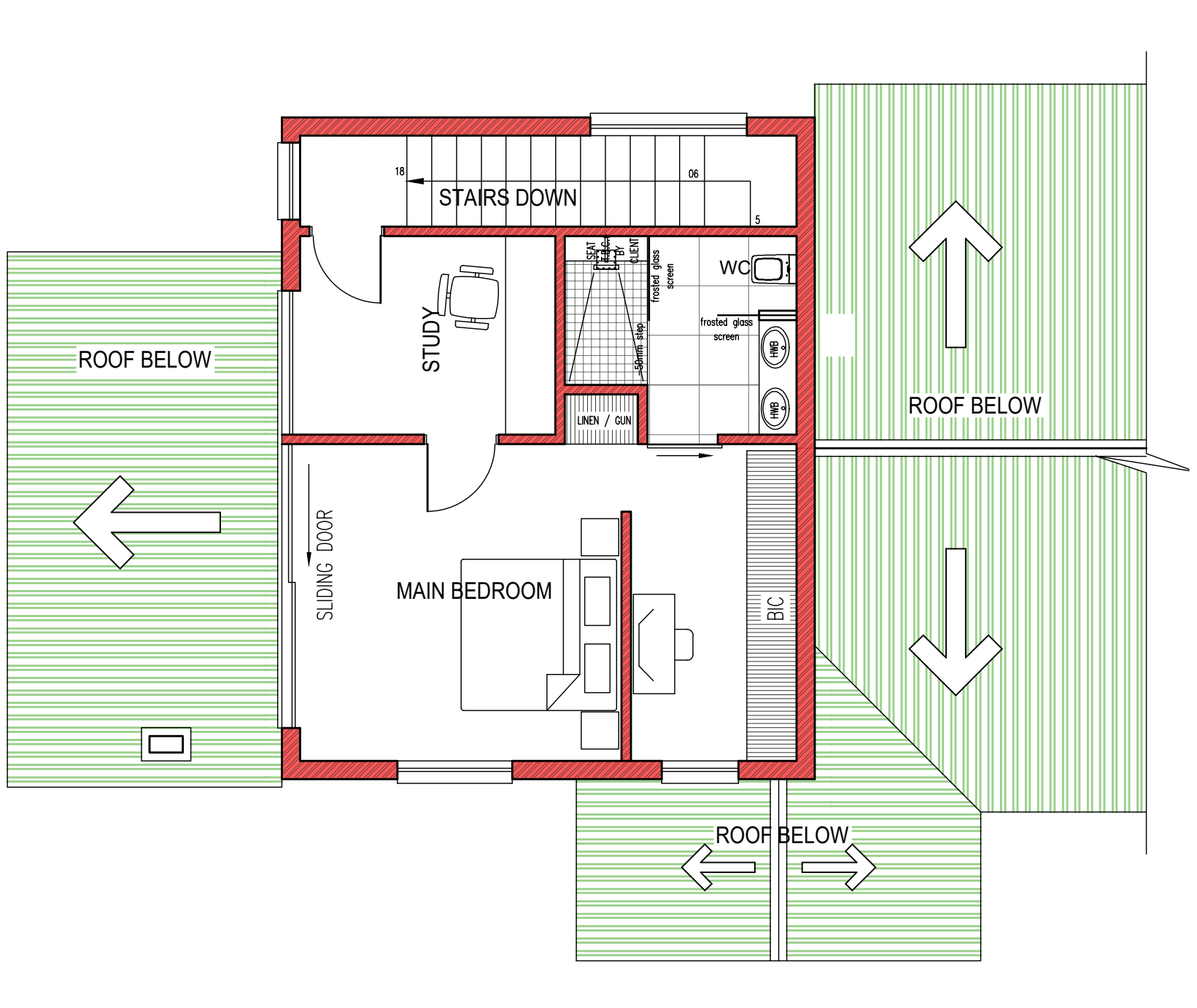
convert this floor plan into a realistic isometric 3d view of a bedroom show the space from an elevated angle with furniture walls and details visible this is the first floor show the stairs as going down use the same furniture as shows on the plan do not change the orientation of the floorplan