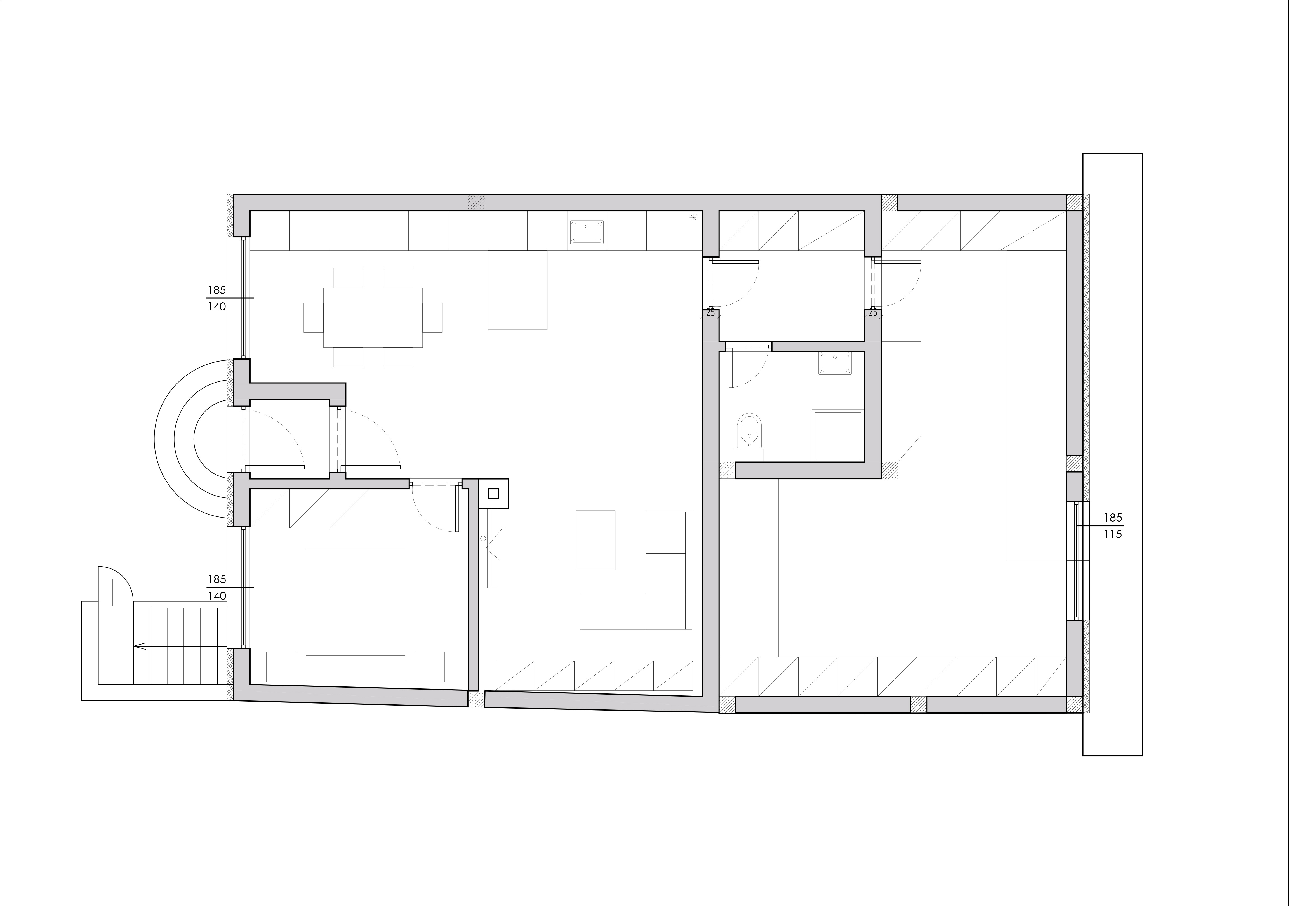
convert this floor plan into a realistic isometric 3d view of a full house show the space from an elevated angle with furniture walls and details visible a modern architectural floor plan rendered in a realistic style use warm wood tones for the floors and neutral beige for the walls incorporate soft ambient lighting for a cozy atmosphere the living room should have a plush gray sofa with vibrant blue and gold accent pillows include a contemporary glass coffee table the kitchen features sleek white cabinets with stainless steel appliances add indoor plants with lush green leaves for a touch of nature the overall atmosphere should feel inviting and sophisticated blending modern minimalism with warmth and comfort use the same furniture as shows on the plan do not change the orientation of the floorplan