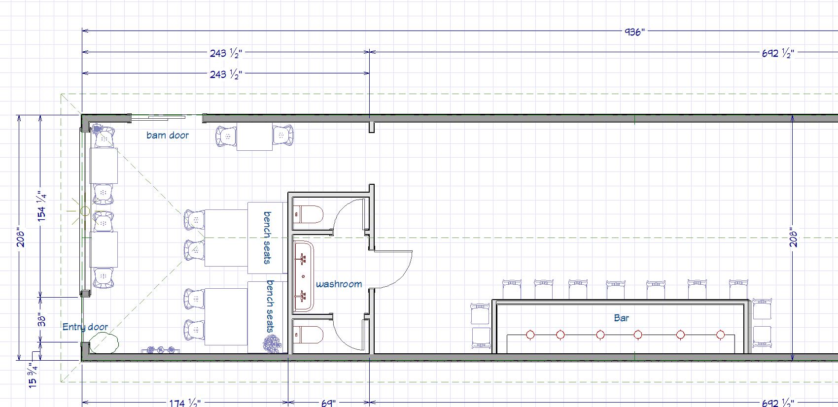
convert this floor plan into a realistic isometric 3d view of a full house show the space from an elevated angle with furniture walls and details visible the is an industrial bar are with brick behind the bar and stage concrete floors and black walls use the same furniture as shows on the plan do not change the orientation of the floorplan