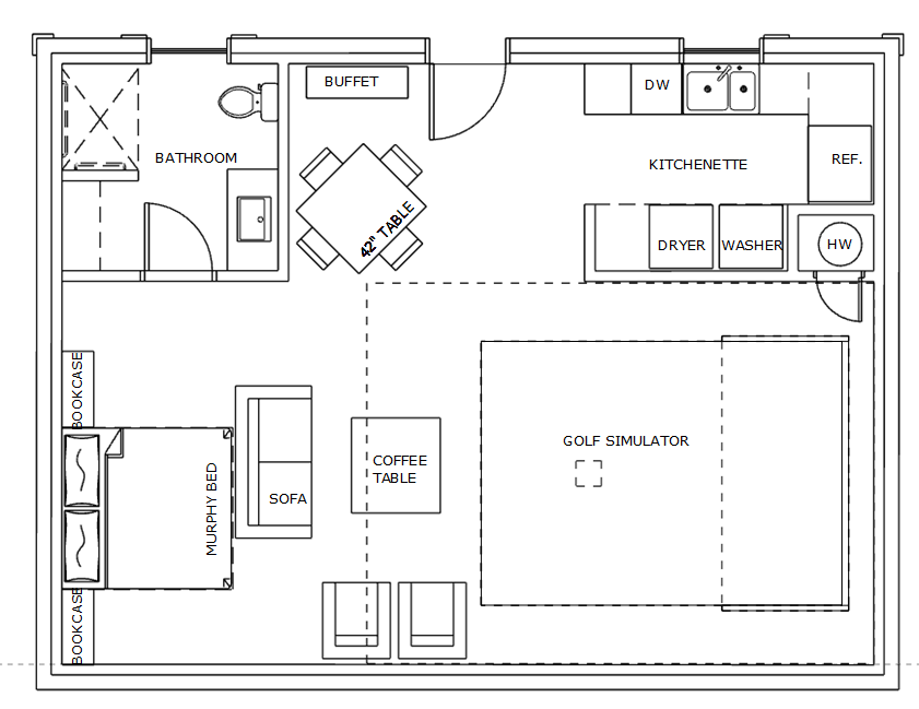
create rendered aerial plan view of cottage apartment in warm neutral palate bathroom has white marble floors kitchenette has white cabinets with white marble countertops and stainless steel appliances white 42 table with upholstered chairs and warm wood buffet golf simulator has green turf floors and projection screen at east wall white sofa and chairs with colorful accent pillows white king murphy bed with bookcases on either side warm wood floors throughout space