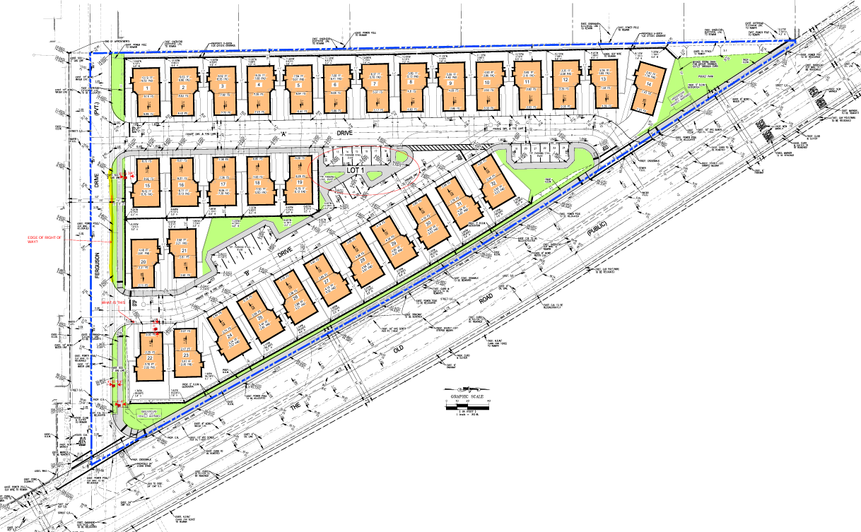
convert this floor plan into a realistic isometric 3d view of a full house show the space from an elevated angle with furniture walls and details visible turn this site plan into a 3d render it s a townhomes condominium where all of the orange shapes are separate buildings each and all of them are equal with sloped roofs garage and front yard add landscape vegetation and stuff to the green areas add the respective streets and sidewalks delete all of the texts lines numbers and graphic elements that do not correspond to the 3d model it s located in california so ambient add context to the surrounded lots and parcels based on that use the same furniture as shows on the plan do not change the orientation of the floorplan