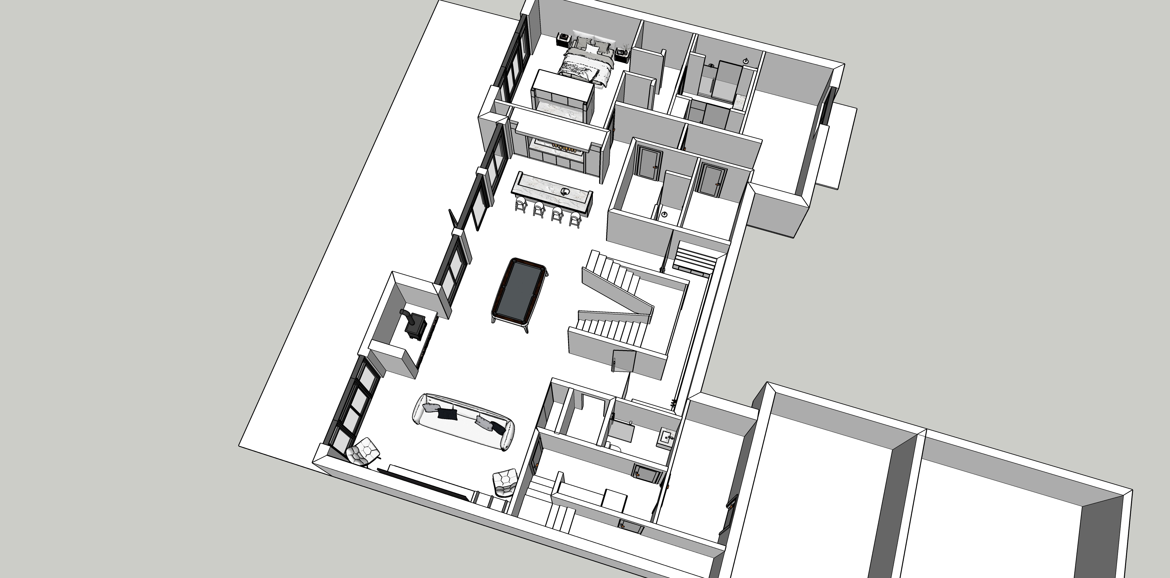
every finish are white juste add beautiful natural light don t change the perspective view