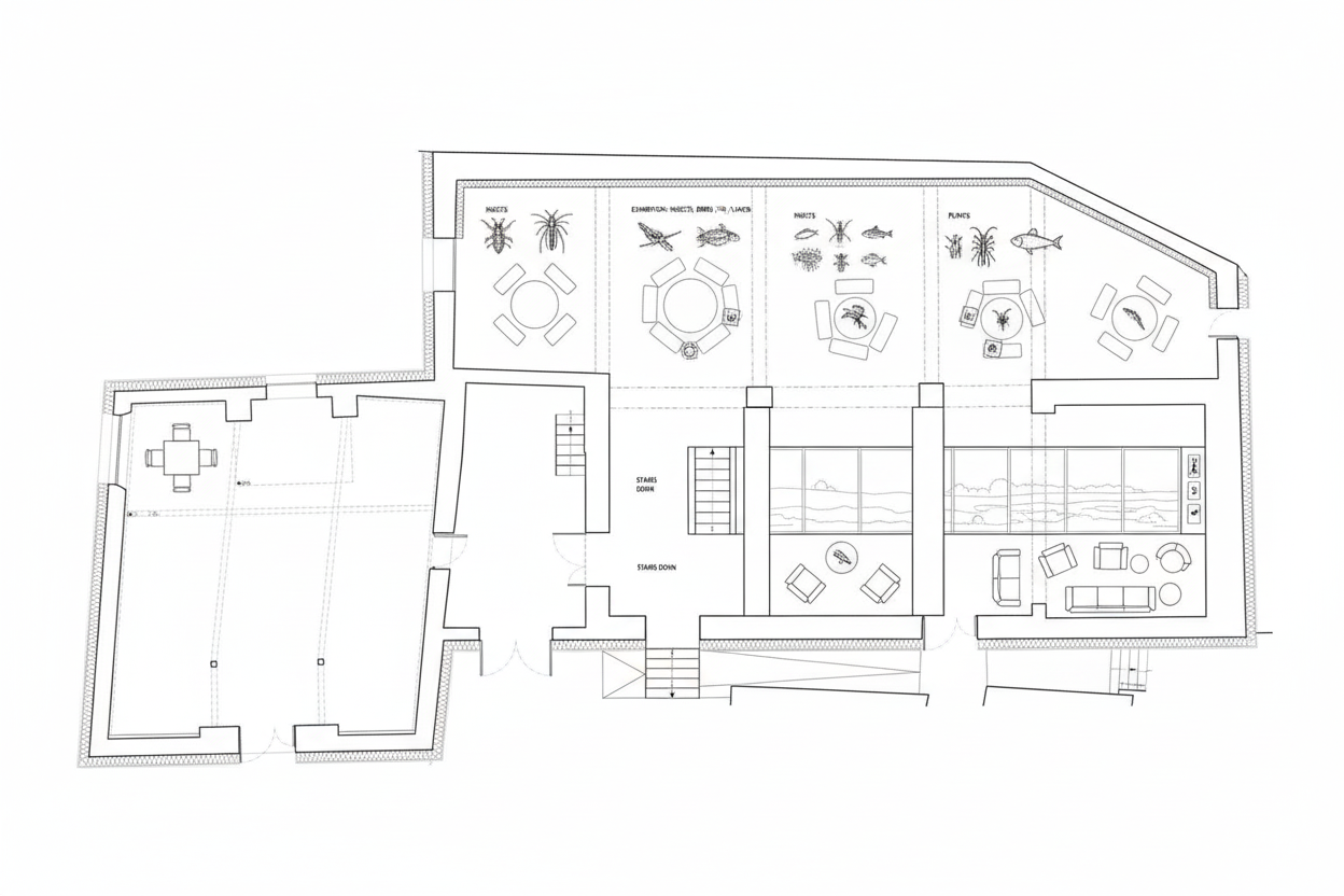
an interactive environmental museum space and viewing space of the river ecology keep the windows and the table set up in the small room alter the space before the windows to be four steps down with the staircase in between the pillars and furniture placed to look out the windows make the long space right as you enter through the doors to be exhibition and learning about the insects birds fish and plants make this an architectural plan view of the furniture add back in the windows on the long and angular side and face the furniture looking out put the steps inbetween the pillars and put the tables with the insects fish birds and plans on the other side