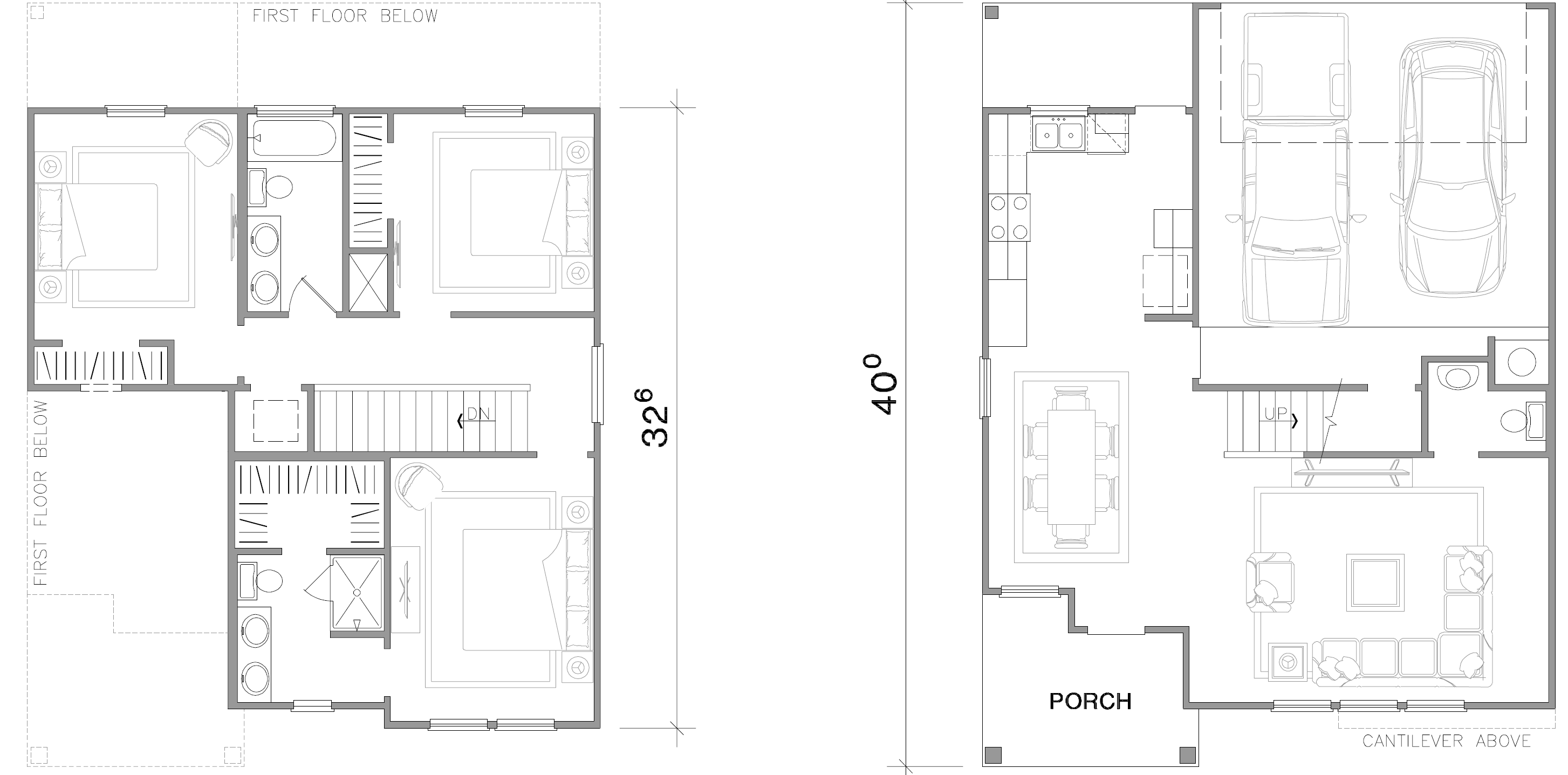
you are given an existing black and white architectural floor plan image absolute rules do not violate do not change the layout in any way do not move resize add or remove walls doors windows stairs or rooms do not alter dimensions scale or proportions do not move resize add or remove any furniture treat the plan as architecturally locked and construction accurate any geometric change is a failure your task keep the floor plan exactly the same only enhance the visual appearance using color materials and subtle styling flooring light natural oak wood flooring in all living areas bedrooms kitchen dining halls and closets light gray tile in all bathrooms smooth gray concrete in garage front porch flat matte finish only no patterns no gloss no dramatic contrast furniture keep all furniture exactly where it is do not change furniture shapes sizes or locations apply a west elm crate barrel aesthetic soft warm neutrals muted tones with restrained color accents calm modern understated no bold colors no playful trendy or decorative exaggeration kitchen baths show only the following appliances sink range refrigerator do not show a dishwasher no icon no placeholder no suggestion of location kitchen and bathroom countertops white or off white quartz subtle marble style veining clean premium understated text labels remove all text room names labels dimensions arrows notes symbols style output top down flat architectural view only no perspective no elevations no 3d effects clean consistent line weights very subtle depth only no shadows that imply height pure white background high end residential marketing quality calm polished brochure ready final check mandatory the finished plan must be dimensionally identical to the original only materials finishes and color should change